The Acorn Group is London’s largest multi-brand estate agency. We offer our clients the best brands, with the best people, in the best locations.

 

Close

Asking price £524,995 freehold

Detached House for sale - Court Crescent, Kent, BR8

Offered to the sales market CHAIN FREE, is this superb three bedroom 1970's built detached family home. In the heart of the ever popular “High Firs” development, set in a quiet, yet easily accesible location.

In close proximity of the local High Firs Primary and Crockenhill Primary school, the Swanley mainline train station, town Centre and the M25/A20/M20 road links. The Swanley station is within the Oyster zone and offers a direct commute into central London within approximately twenty minutes.

Further amenities to include, Bluewater Shopping Centre, Ebbsfleet international, Whiteoak Leisure centre, Swanley park and more.

This is the ideal house for any growing family looking for a spacious accommodation in a family orientated popular quiet residential area. Further to note this property has plenty of scope for extension (STPP).

The side plot and generous rear garden, lend itself for the ideal purchase for any family looking to extend their long term family home.

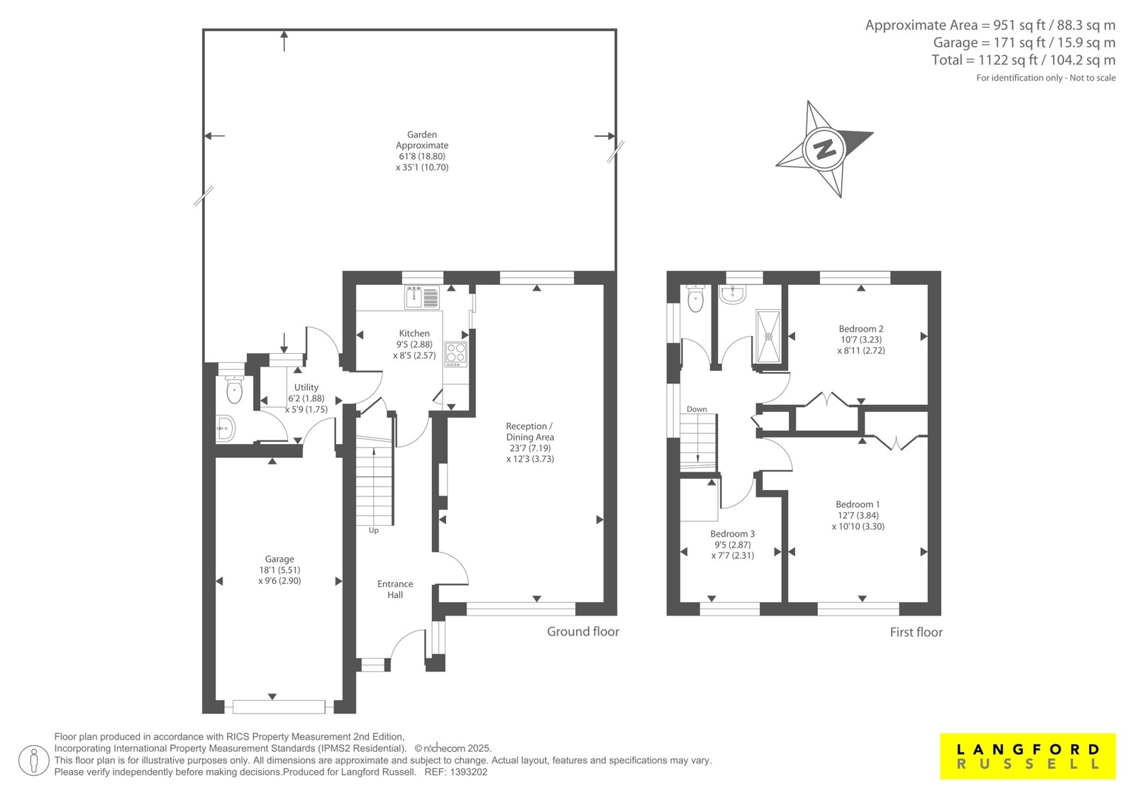
Property comprises - Entrance Hall, 23’7x12’3 Reception/dining room, kitchen with access into utility room, ground floor cloakroom, and integral access into the 18’1x9’6 garage.

To the first floor – Landing with storage cupboard, three bedrooms and shower room with separate WC. All three bedrooms have built in wardrobe/storage facility.

Externally, a well-proportioned frontage with lawn area, off street parking for two vehicles to front and side access to a wonderful rear garden mostly laid to lawn, with shed to rear.

Further to note, this family residence offers double glazing and gas central heating, and provides a neautral decor throughout. Comtact Langford Russell to arrange your internal inspection, viewing is highly recommended!

Sevenoaks District Council - Council Tax Band - E
Energy Efficiency Rating - C

Talk to Hayley Buist from Langford Russell (Estate agents in Swanley)

 

Use our calculator to work out potential mortgage repayments and stamp duty costs. Please note, these calculators are for general interest only and must not be relied on. Speak to our Mortgage Scout team for further information and advice. 

Powered by

Total Mortgage

£

Estimated Monthly Mortgage Payment

£

  • Powered by

Swanley Area Guide

Explore the areas we serve – from parks, entertainment and transport links, to shopping, eating and drinking.

Dive into property knowledge

Visit the AcornIntel knowledge-base, our library of articles to help you make sense of all things property, or send your questions to our panel of property experts.

Get your property valued

Looking to sell or let your property? Get a free property valuation from one of our experts.

Top