The Acorn Group is London’s largest multi-brand estate agency. We offer our clients the best brands, with the best people, in the best locations.

 

Close

Asking price £895,000 freehold

Detached House for sale - Conifer Close, BR6

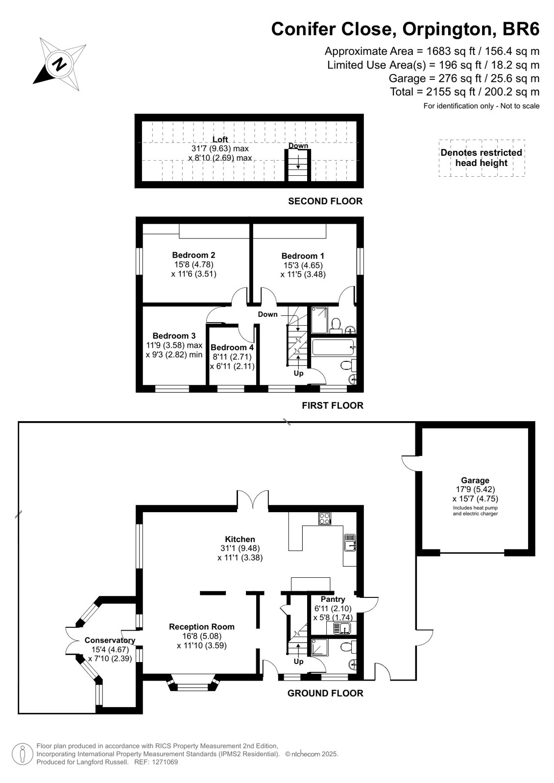
Langford Russell are delighted to present this beautifully extended and recently refurbished four-bedroom detached family home, measuring approximately 2,100 sq ft, located in a highly sought-after cul-de-sac within excellent school catchment areas.

The ground floor benefits from underfloor heating and comprises a bright and airy open plan reception / dining room, kitchen featuring integrated samsung appliances such as wine fridge and LED lighting. The adjoining conservatory offers a peaceful view of the garden, while a downstairs shower room adds convenience.

The first floor holds four bedrooms, three of which are doubles and the principal featuring fitted wardrobe and a stylish en-suite and finally a three-piece family bathroom. The second floor holds loft storage space.

To the rear this property benefits from a South Easterly wrap around garden with side access and a detached double garage. The property also has a heat pump and electric charger.

There is potential to extend the current home to connect the garage to the main residence (STPP) to either create additional living accommodation or a self-contained annexe.

Orpington Train Station is a short bus ride or approximately 1 mile walk away and offers fast trains into London Bridge from 15 minutes. Farnborough Village is just 0.2 mile away with its selection of shops, primary school and access to High Elms Country Park. Tubbenden Primary School, Warren Road Primary School and Darrick Wood Secondary School is within catchment and both Newstead Woods and St Olave’s Grammar Schools are within walking distance or a short bus ride away.

Tenure – Freehold
Energy Efficiency Rating – C
London Borough of Bromley - Council Tax Band - G

Talk to Oliver Pettman from Langford Russell (Estate agents in Orpington)

 

Use our calculator to work out potential mortgage repayments and stamp duty costs. Please note, these calculators are for general interest only and must not be relied on. Speak to our Mortgage Scout team for further information and advice. 

Powered by

Total Mortgage

£

Estimated Monthly Mortgage Payment

£

  • Powered by

Orpington Area Guide

Explore the areas we serve – from parks, entertainment and transport links, to shopping, eating and drinking.

Dive into property knowledge

Visit the AcornIntel knowledge-base, our library of articles to help you make sense of all things property, or send your questions to our panel of property experts.

Get your property valued

Looking to sell or let your property? Get a free property valuation from one of our experts.

Top