The Acorn Group is London’s largest multi-brand estate agency. We offer our clients the best brands, with the best people, in the best locations.

 

Close

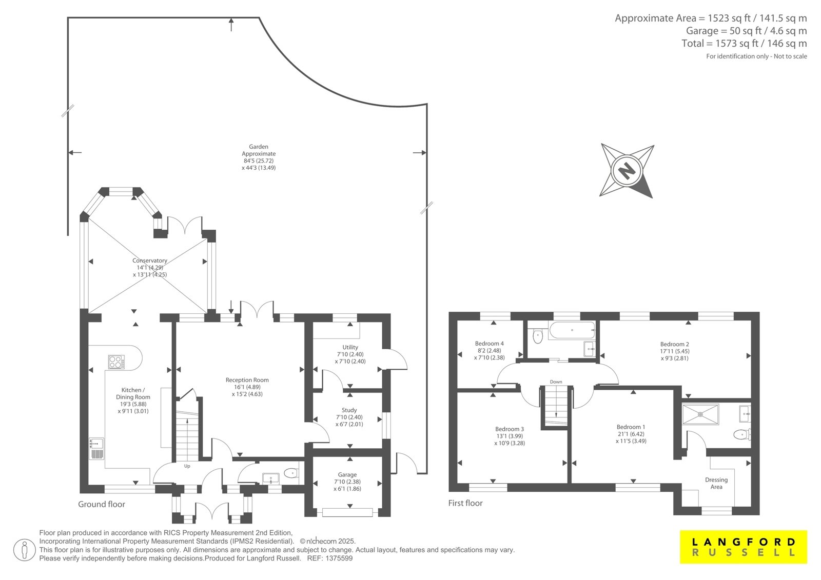
Guide price £825,000 freehold

Detached House for sale - Arden Grove, BR6

** GUIDE PRICE £825,000 - £850,000 **

Langford Russell are delighted to present this beautifully presented and extended four-bedroom detached family home, ideally located on a quiet residential cul-de-sac in the popular area of Orpington. Offering spacious and versatile accommodation throughout, this home is perfect for growing families seeking comfort, convenience, and style.

The ground floor comprises a welcoming entrance porch leading into a generous hallway, providing access to a bright and airy reception room with double doors opening onto the rear garden. The stylish open-plan kitchen/dining room is the heart of the home, fitted with modern units, quality worktops, and integrated appliances, and opens into a conservatory that provides an ideal space for family dining or entertaining. Completing the ground floor is a useful study, a utility room, a cloakroom.

Upstairs, the property offers four well-proportioned bedrooms, including a spacious principal bedroom with a dedicated dressing area and a modern en-suite shower room. The remaining bedrooms are served by a contemporary family bathroom, finished to a high standard.

Externally, the home boasts a beautifully maintained rear garden with a patio area perfect for outdoor dining and relaxation, along with a neat lawn. To the front, there is ample off-street parking on the block-paved driveway and access to the garage.

Further benefits include a garage offering excellent storage or potential for conversion (subject to planning permission). double glazing throughout, gas central heating, and the property’s peaceful yet convenient location.

Arden Grove is situated within the catchment areas of several well-regarded schools, including Darrick Wood Primary and Secondary, Farnborough Primary, and is within walking distance of Tubbenden Primary. It is also conveniently located near Locksbottom Village and Farnborough Village, both offering a range of supermarkets, boutique shops, and independent bars and restaurants. Orpington Station, located less than two miles away, provides direct services to London Bridge (15 minutes), Cannon Street, Waterloo East, London Charing Cross and London Victoria. For outdoor enthusiasts, the nearby Darrick Woods, High Elms Country Park, and Tugmutton Common offer beautiful walking, running, and recreational areas, as well as being home to local cricket and tennis clubs.

This exceptional property offers the ideal blend of modern living and family comfort and must be viewed to be fully appreciated.

London Borough of Bromley - Council Tax Band - F
Energy Efficiency Rating - C

Talk to Oliver Pettman from Langford Russell (Estate agents in Locksbottom)

 

Use our calculator to work out potential mortgage repayments and stamp duty costs. Please note, these calculators are for general interest only and must not be relied on. Speak to our Mortgage Scout team for further information and advice. 

Powered by

Total Mortgage

£

Estimated Monthly Mortgage Payment

£

  • Powered by

Locksbottom Area Guide

Explore the areas we serve – from parks, entertainment and transport links, to shopping, eating and drinking.

Dive into property knowledge

Visit the AcornIntel knowledge-base, our library of articles to help you make sense of all things property, or send your questions to our panel of property experts.

Get your property valued

Looking to sell or let your property? Get a free property valuation from one of our experts.

Top