The Acorn Group is London’s largest multi-brand estate agency. We offer our clients the best brands, with the best people, in the best locations.

 

Close

Asking price £620,000 freehold

Bungalow for sale - Bennetts Avenue, Sevenoaks, TN15

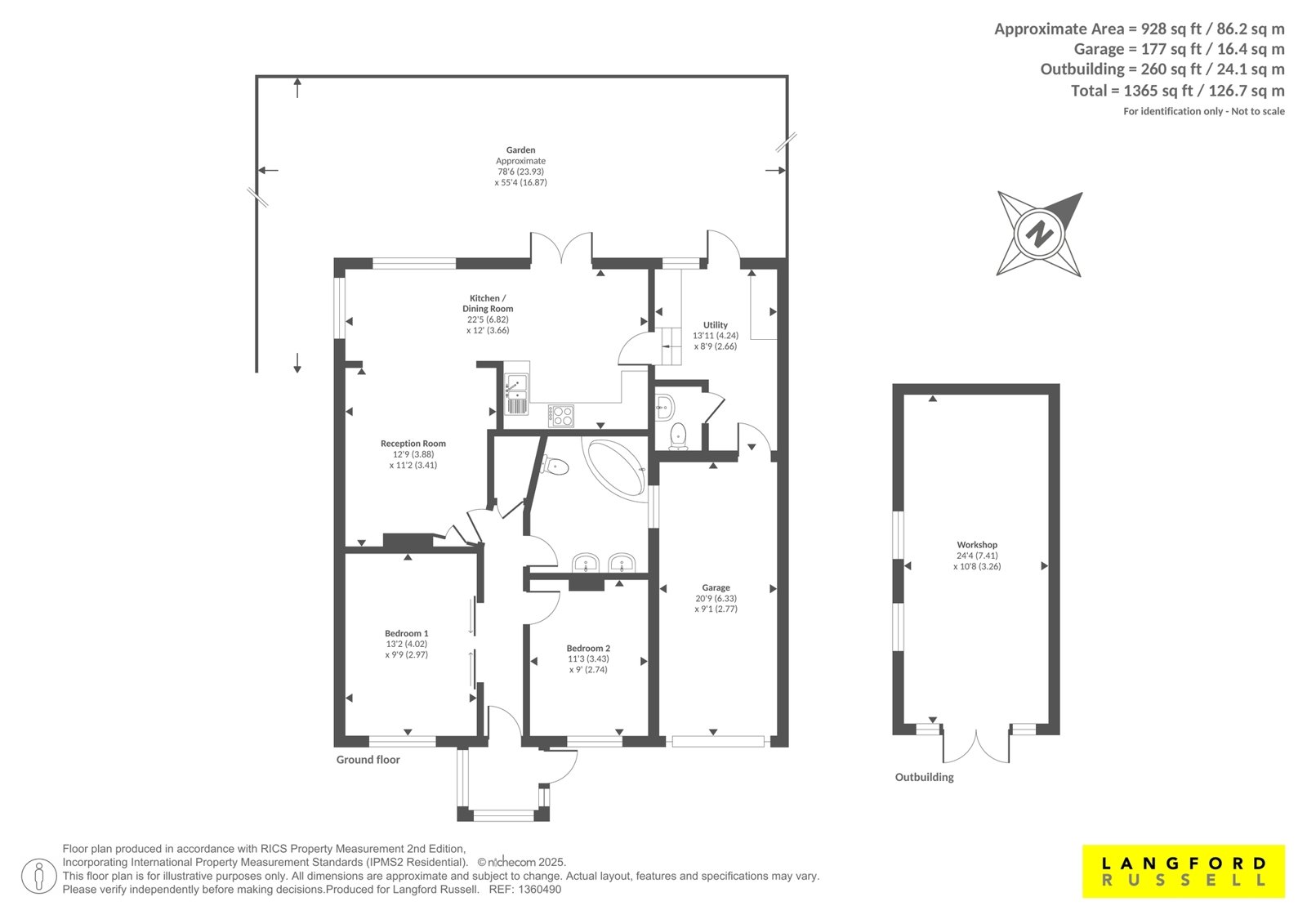
Positioned at the entrance of a quiet cul-de-sac, this generously proportioned two-bedroom detached bungalow offers a rare opportunity for both comfortable living and future development. Set on a substantial plot, the property boasts extensive off-road parking—with space for approximately 10 vehicles to the front, plus additional parking to the rear via a second driveway.

This well-maintained home benefits from planning permission for additional accommodation to the side, along with potential for a loft conversion, making it an ideal prospect for those looking to expand or create a multi-generational living setup. A Certificate of Lawfulness and approved plans are also in place for the erection of a mobile home/granny annex, providing further flexibility.

The existing accommodation comprises:
• Entrance porch and welcoming hallway
• Bright rear-facing living room
• Spacious kitchen/diner
• Separate utility room
• Two well-proportioned bedrooms
• Family bathroom and additional cloakroom

Externally, the property features a large brick-built summerhouse with power and lighting—perfect as a home office, studio, or entertaining space. A detached garage adds further convenience and storage options.

Additional benefits include gas central heating, double glazing, and dual access driveways, offering superb accessibility and versatility.

With its sizeable plot, multiple access points, and approved planning permissions, this charming bungalow presents a unique opportunity for buyers seeking a home with space to grow and the freedom to create a bespoke living arrangement.

Tenure - Freehold
Sevenoaks District Council - Tax Band: E
Energy Efficiency Rating: D

Talk to Robert Keeble from Langford Russell (Estate agents in Sevenoaks)

 

Use our calculator to work out potential mortgage repayments and stamp duty costs. Please note, these calculators are for general interest only and must not be relied on. Speak to our Mortgage Scout team for further information and advice. 

Powered by

Total Mortgage

£

Estimated Monthly Mortgage Payment

£

  • Powered by

Sevenoaks Area Guide

Explore the areas we serve – from parks, entertainment and transport links, to shopping, eating and drinking.

Dive into property knowledge

Visit the AcornIntel knowledge-base, our library of articles to help you make sense of all things property, or send your questions to our panel of property experts.

Get your property valued

Looking to sell or let your property? Get a free property valuation from one of our experts.

Top