The Acorn Group is London’s largest multi-brand estate agency. We offer our clients the best brands, with the best people, in the best locations.

 

Close

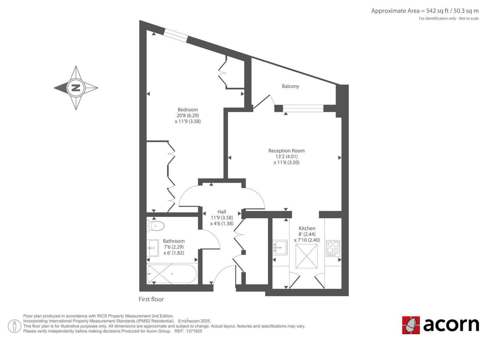
Guide price £350,000 leasehold

Apartment for sale - Woods Road, SE15

Larger than average, high spec one double bedroom first floor apartment measuring an impressive 542sqft situated in the highly regarded Woods Road development.

Briefly comprising of; a large double bedroom with fitted wardrobes, an expansive three-piece bathroom and large storage room are found off the entrance hall. A sizeable open-plan kitchen/living/dining space to the front offers direct access to the private East facing balcony.

The secure and gated development is beautifully maintained and offers bike storage as well as communal gardens.

Woods Road is a quiet residential street, perfectly situated for transport links, with Queens Road (0.2mi), Nunhead (0.4mi) and Peckham Rye (0.4mi) all within short walking distance. Also just a stones' throw from the bars, restaurants and independent shops Queens Road (0.2mi), Nunhead Lane (0.4mi) and Peckham Rye (0.4mi) has to offer.

Leasehold (240 Years) | Service Charge £3,200 pa | Ground Rent £300 pa

Talk to James Moss from Acorn (Estate agents in Peckham Rye)

 

Use our calculator to work out potential mortgage repayments and stamp duty costs. Please note, these calculators are for general interest only and must not be relied on. Speak to our Mortgage Scout team for further information and advice. 

Powered by

Total Mortgage

£

Estimated Monthly Mortgage Payment

£

  • Powered by

Peckham Rye Area Guide

Explore the areas we serve – from parks, entertainment and transport links, to shopping, eating and drinking.

Dive into property knowledge

Visit the AcornIntel knowledge-base, our library of articles to help you make sense of all things property, or send your questions to our panel of property experts.

Get your property valued

Looking to sell or let your property? Get a free property valuation from one of our experts.

Top