The Acorn Group is London’s largest multi-brand estate agency. We offer our clients the best brands, with the best people, in the best locations.

 

Close

Guide price £900,000 leasehold

Apartment for sale - Vanbrugh Terrace, SE3

** GUIDE PRICE £900,000 - £950,000 **

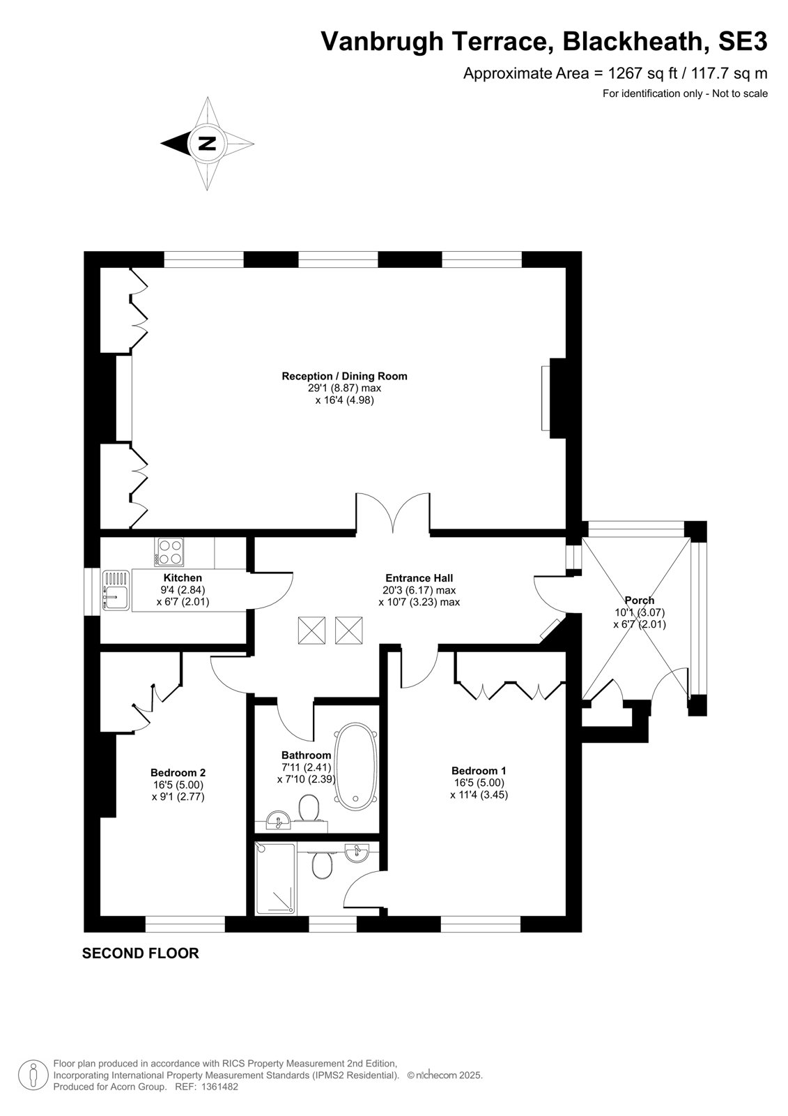
An exquisite, two bedroom conversion flat with potential for adaptation to a 3 bedroom, located within a Grade II listed, imposing, detached house with unobstructed views of the open heath and Greenwich Park. Approx. 1,267 sq ft / 117.7 sq m – Second Floor.

A generous entrance hall sets the tone for the space, providing a grand and welcoming approach to the home. The heart of the property is the impressive 29'1 ft reception/dining room, bathed in natural light from a wall of sash windows and ideal for both relaxed living and entertaining.

The separate kitchen, located just off the main living area, is well-appointed and practical, with ample countertop space and room for integrated appliances. An elegant bathroom with shower in bath is centrally located within this substantial apartment.

There are two large double bedrooms, each measuring over 15 feet in length. The main bedroom features an en-suite shower room, and both enjoy the pleasures of morning sun.

Additional features include a charming private vestibule naturally lit, high ceilings throughout, and the potential for bespoke storage solutions in the wide hallways.

The property is found close to outstanding transportation with both Blackheath and Maze Hill mainline stations easily accessible (London Bridge, Cannon Street, Charing Cross and Thameslink). Blackheath Village is only a short walk away which offers bars, restaurants, boutique style shopping and a farmers’ market on weekends. There are further convenient shopping and leisure facilities within easy reach at the Royal Standard.

Tenure Leasehold
Lease 150 Years From December 1974 - 100 Years Remaining
Service Charge as and when
Ground Rent Peppercorn
Local Authority The Royal Borough Of Greenwich Band F
Energy Efficiency Rating D

Talk to Will McElligott from John Payne (Estate agents in Blackheath Standard)

 

Use our calculator to work out potential mortgage repayments and stamp duty costs. Please note, these calculators are for general interest only and must not be relied on. Speak to our Mortgage Scout team for further information and advice. 

Powered by

Total Mortgage

£

Estimated Monthly Mortgage Payment

£

  • Powered by

Blackheath Standard Area Guide

Explore the areas we serve – from parks, entertainment and transport links, to shopping, eating and drinking.

Dive into property knowledge

Visit the AcornIntel knowledge-base, our library of articles to help you make sense of all things property, or send your questions to our panel of property experts.

Get your property valued

Looking to sell or let your property? Get a free property valuation from one of our experts.

Top