The Acorn Group is London’s largest multi-brand estate agency. We offer our clients the best brands, with the best people, in the best locations.

 

Close

OIEO £450,000 leasehold

Apartment for sale - Ulverscroft Road, SE22

Set on the ground floor of a period conversion, this charming one-bedroom property combines characterful interiors with a generous private garden, creating a home that feels both welcoming and practical.

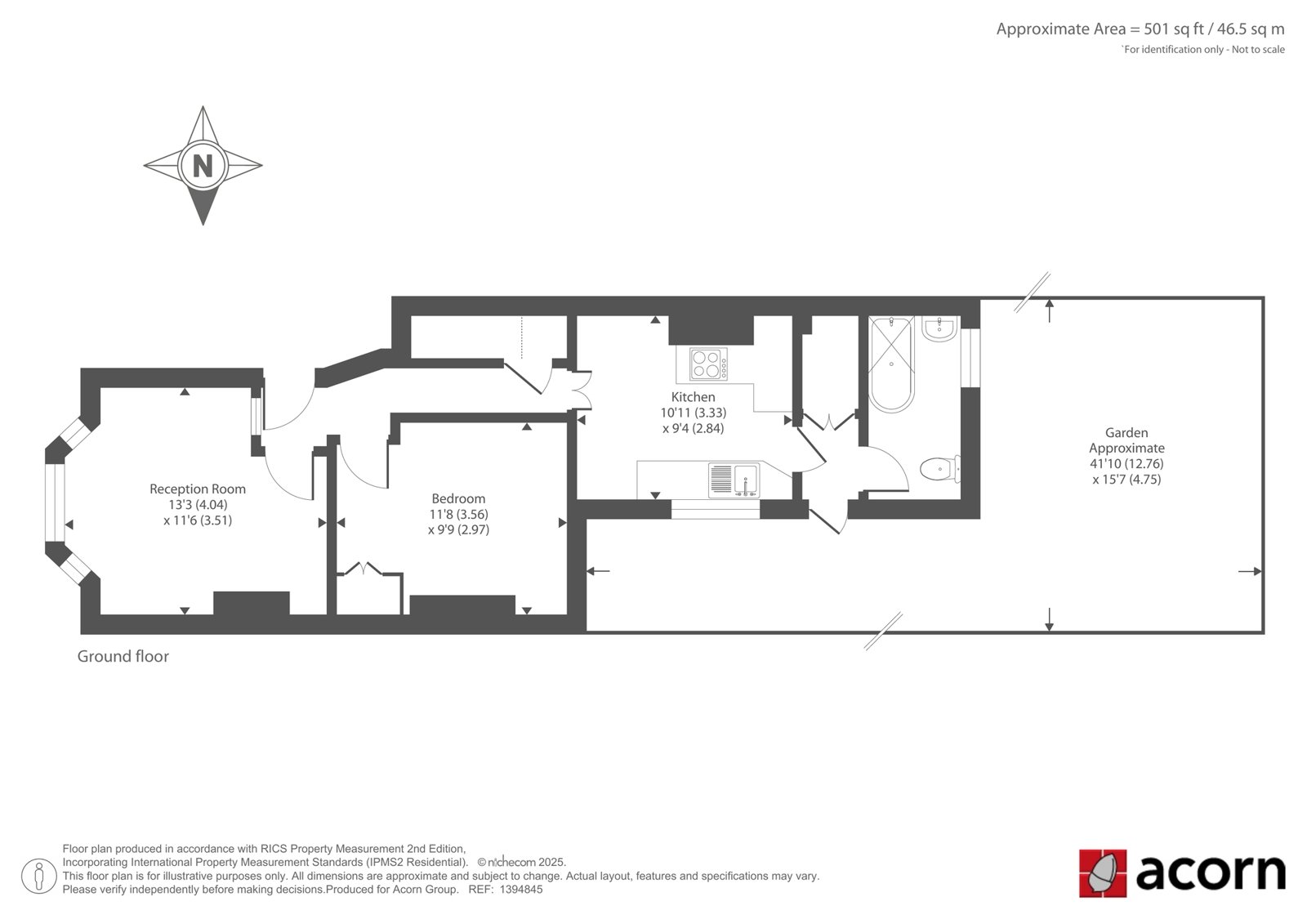
The reception room sits at the front of the property and is filled with natural light via a wide bay window fitted with plantation shutters, offering both privacy and an attractive outlook. Original wooden floorboards run underfoot, while an elegant period fireplace forms a natural focal point, complemented by bespoke built-in shelving and storage that make excellent use of the space. The room has a warm, comfortable feel and works equally well for relaxing or entertaining. Moving through the property, the bedroom is well proportioned and quietly positioned, providing ample space for a double bed and additional furniture. The layout flows naturally towards the rear, where the separate kitchen offers good worktop and storage space and leads through to the bathroom. The bathroom is finished in a classic style, with a white suite, full-size bath and overhead shower, metro wall tiling, and patterned floor tiles that add character while remaining timeless.

To the rear of the property is a standout feature, a substantial private garden extending to approximately 41 feet. This impressive outdoor space offers plenty of room for outdoor dining, gardening, or simply enjoying the warmer months, and is a rare benefit for a property of this size. The garden significantly enhances the overall appeal and lifestyle on offer. The accommodation sits circa 501 sq ft (46.5 sq m) and is arranged efficiently across one level.

Ulverscroft Road is ideally positioned within the popular SE22 postcode, known for its strong community feel and excellent local amenities. East Dulwich is close by, offering a wide selection of independent shops, cafés, bars and restaurants along Lordship Lane. Green spaces such as Peckham Rye and Dulwich Park are within easy reach, providing open space for walking, exercise and leisure. Transport links are well served by nearby stations including East Dulwich and Peckham Rye, offering regular connections into Central London, while a number of well-regarded schools and local services further enhance the area’s appeal.

Tenure Leasehold
Lease Length 125 Years From 26 January 1987
87 Years Remaining
Ground Rent £10
Service Charge £670.33 -For 2024 to 2025
Local Authority Southwark Council Tax Band B
Energy Efficiency Rating D

Talk to James Keen from Acorn (Estate agents in Dulwich)

 

Use our calculator to work out potential mortgage repayments and stamp duty costs. Please note, these calculators are for general interest only and must not be relied on. Speak to our Mortgage Scout team for further information and advice. 

Powered by

Total Mortgage

£

Estimated Monthly Mortgage Payment

£

  • Powered by

Dulwich Area Guide

Explore the areas we serve – from parks, entertainment and transport links, to shopping, eating and drinking.

Dive into property knowledge

Visit the AcornIntel knowledge-base, our library of articles to help you make sense of all things property, or send your questions to our panel of property experts.

Get your property valued

Looking to sell or let your property? Get a free property valuation from one of our experts.

Top