The Acorn Group is London’s largest multi-brand estate agency. We offer our clients the best brands, with the best people, in the best locations.

 

Close

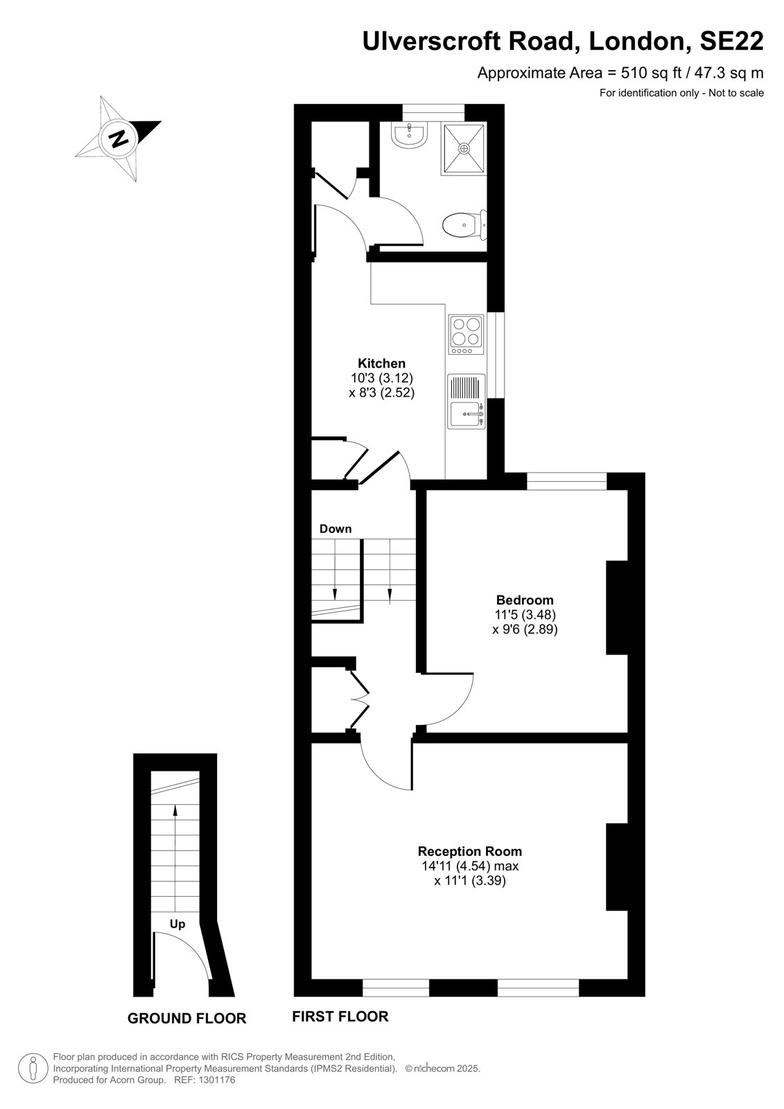
Guide price £400,000 leasehold

Apartment for sale - Ulverscroft Road, SE22

Guide Price of £400,000 - £425,000.

Presenting a charming Victorian conversion flat located on Ulverscroft Road, nestled in the sought-after neighbourhood of East Dulwich.

This first floor one bedroom property briefly comprises of a reception room to the front, double bedroom, kitchen and bathroom to the rear. The property would benefit from being updated throughout.

Located in East Dulwich, the flat benefits from the area's vibrant atmosphere and a wide range of amenities. Ulverscroft Road is a tree-lined street, known for its picturesque surroundings and Victorian charm on the door step of North Cross market. Residents can enjoy easy access to local shops, restaurants, cafes, and green spaces of Dulwich Park and Peckham Rye Park and Common.

Commuters will appreciate the excellent transport links available from Ulverscroft Road. East Dulwich is a 13 minute walk with frequent train services providing easy access to central London, with direct connections to London Bridge (11 mins). Additionally, there are several bus routes operating in the area, offering convenient travel options to various destinations across the city.

Lease Length: 98 years remaining
Service Charge: £335.73
Ground Rent: £10 per annum
Council Tax Band: B
Energy Efficiency Rating: C

Talk to James Keen from Acorn (Estate agents in Dulwich)

 

Use our calculator to work out potential mortgage repayments and stamp duty costs. Please note, these calculators are for general interest only and must not be relied on. Speak to our Mortgage Scout team for further information and advice. 

Powered by

Total Mortgage

£

Estimated Monthly Mortgage Payment

£

  • Powered by

Dulwich Area Guide

Explore the areas we serve – from parks, entertainment and transport links, to shopping, eating and drinking.

Dive into property knowledge

Visit the AcornIntel knowledge-base, our library of articles to help you make sense of all things property, or send your questions to our panel of property experts.

Get your property valued

Looking to sell or let your property? Get a free property valuation from one of our experts.

Top