The Acorn Group is London’s largest multi-brand estate agency. We offer our clients the best brands, with the best people, in the best locations.

 

Close

Asking price £743,000 shareOfFreehold

Apartment - The Priory, London, SE3

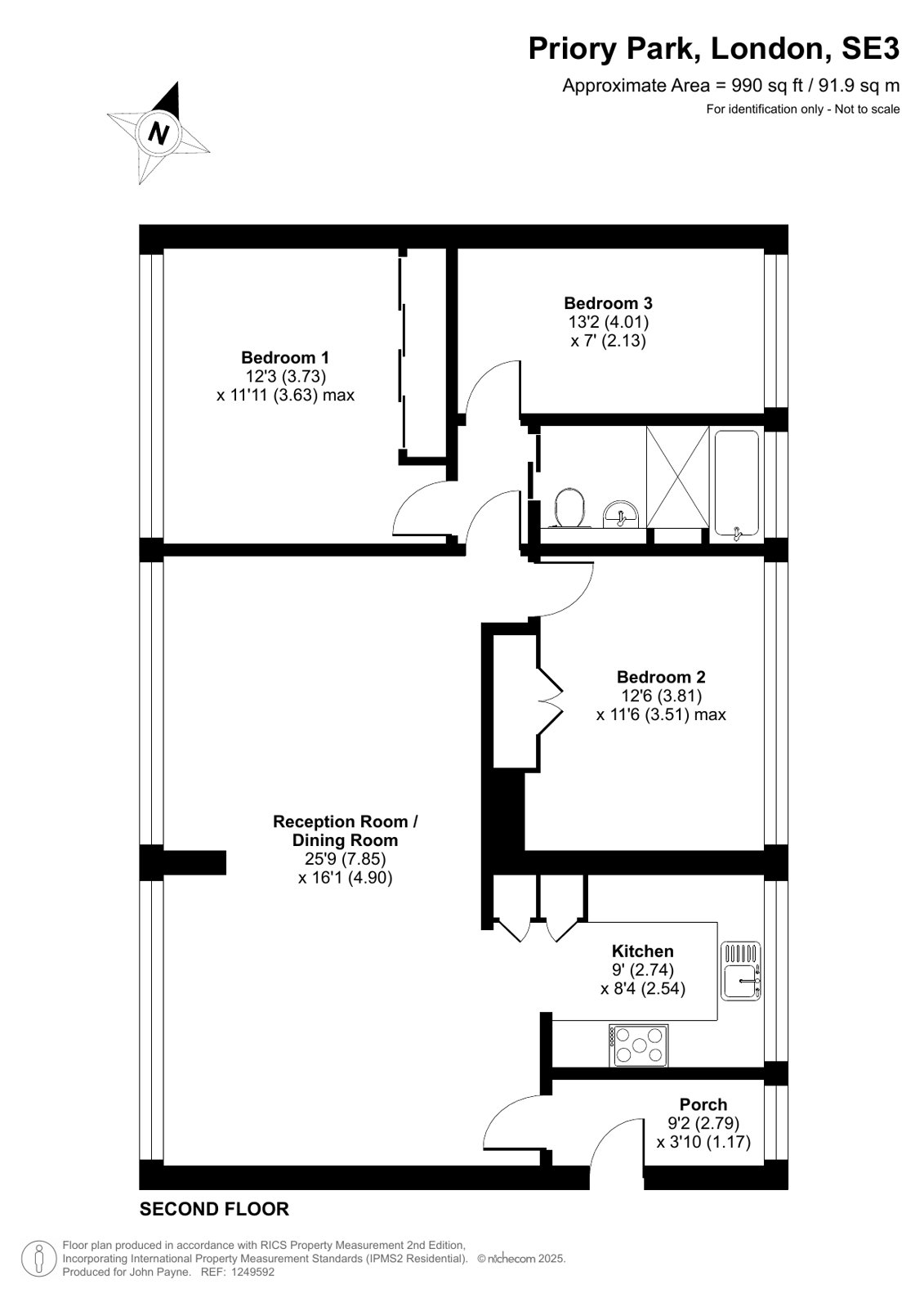
Stunning, luxuriously appointed, very spacious, and beautifully presented and three bedroom, two reception room, bright and airy top floor apartment in this sought after and leafy Eric Lyons designed Span development just off Priory Park on Blackheath's private Cator estate.

The current owners have upgraded the apartment to the very highest of standards throughout - There is an impressive double length reception room with white engineered oak wood flooring, divided into two distinct dining and living areas two generous, beautifully presented double bedrooms and a third, generously proprtioned single bedroom which also makes for a super work from home office.

Further features include a good sized and high end designer Leicht kitchen complete with smoked oak wood cabinets, sintered stone worktops and Quooker tap and a super stylish bathroom finished with terrazo floor tiles and underfloor heating and imported Italian arabescato corchia wall tiling, a handmade marble sink, stylish bath and a walk through shower.

This superb bright and well-proportioned apartment includes replacement wood frame double glazing throughout, central heating and comes a share of the freehold and the use of a storeroom on the top floor landing.

There is un-allocated residents parking within the development and a children's play area within the shared gardens.

Blackheath Village with its station, excellent schools, shops, restaurants, bars and boutiques is only short walk away as is Lee Green with its Sainsburys and shops and Lee railway station.

Tenure - Share of Freehold
Lease Length - 999 Years
Service Charge - £3,120 PA
The Royal Borough of Greenwich - Council Tax Band -
D
Energy Efficiency Rating - C

Talk to Richard O'Toole from John Payne (Estate agents in Blackheath)

 

Use our calculator to work out potential mortgage repayments and stamp duty costs. Please note, these calculators are for general interest only and must not be relied on. Speak to our Mortgage Scout team for further information and advice. 

Powered by

Total Mortgage

£

Estimated Monthly Mortgage Payment

£

  • Powered by

Blackheath Area Guide

Explore the areas we serve – from parks, entertainment and transport links, to shopping, eating and drinking.

Dive into property knowledge

Visit the AcornIntel knowledge-base, our library of articles to help you make sense of all things property, or send your questions to our panel of property experts.

Get your property valued

Looking to sell or let your property? Get a free property valuation from one of our experts.

Top