The Acorn Group is London’s largest multi-brand estate agency. We offer our clients the best brands, with the best people, in the best locations.

 

Close

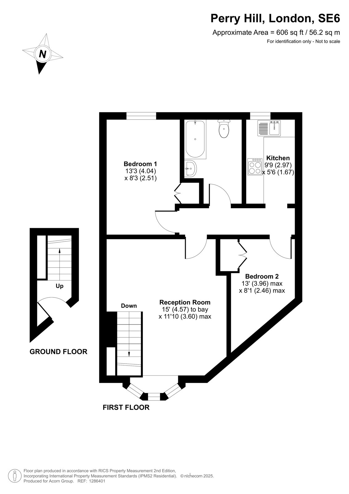
Guide price £275,000 freehold

Apartment for sale - St. Georges Parade, London, SE6

Guide Price: £275,000 - £300,000

Offered to the market with no onward chain, Acorn are thrilled to welcome this bright maisonette located on the SE6/23 borders.

The property is Freehold and boasts off street parking, as well as its own front door.

Offered in good order, the accommodation comprises two well proportioned bedrooms, bathroom, fitted kitchen, and bright lounge diner with bay window.

Within easy reach of all the amenities of Catford, Forest Hill and Honor Oak, the maisonette represents an ideal first time purchase.

Freehold
EPC D
Council Tax Band B

Talk to Jake Blackman from Acorn (Estate agents in Catford)

 

Use our calculator to work out potential mortgage repayments and stamp duty costs. Please note, these calculators are for general interest only and must not be relied on. Speak to our Mortgage Scout team for further information and advice. 

Powered by

Total Mortgage

£

Estimated Monthly Mortgage Payment

£

  • Powered by

Catford Area Guide

Explore the areas we serve – from parks, entertainment and transport links, to shopping, eating and drinking.

Dive into property knowledge

Visit the AcornIntel knowledge-base, our library of articles to help you make sense of all things property, or send your questions to our panel of property experts.

Get your property valued

Looking to sell or let your property? Get a free property valuation from one of our experts.

Top