The Acorn Group is London’s largest multi-brand estate agency. We offer our clients the best brands, with the best people, in the best locations.

 

Close

Guide price £225,000 leasehold

Apartment - Springbank Road, London, SE13

Guide Price £225,000 to £250,000

Acorn are pleased to welcome to the Hither Green market is this highly-sought after period conversion, with it's characterful elements and situated in a double fronted Victorian Residence.

Hither Green itself boasting an array of local shops and Hither Green Village, which includes the ‘famous’ Station Hotel. Hither Green Station is located at the end of your very street, and serves the London Charing Cross line, and London Canon Street line, calling at stations such as London Bridge, London Waterloo East, to name a few.

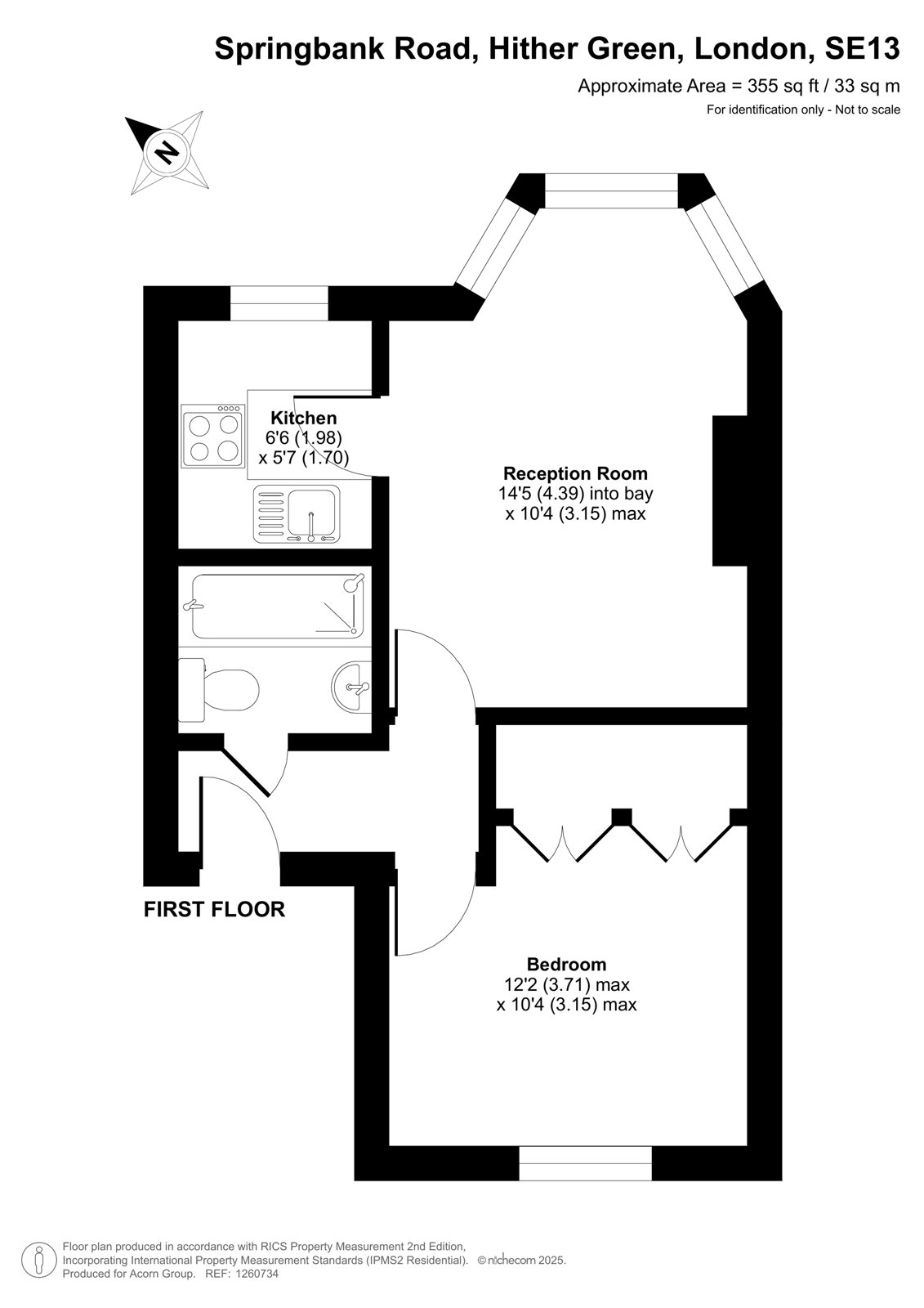
The accommodation itself is set on the first floor within this double fronted building, with the layout consisting of one spacious bedrooms, a well-proportioned bathroom with shower over bath feature, a reception room with bay feature window that leads into a cozy kitchen, the apartment is neutral throughout.

This style of conversion is incredibly popular and so is Hither Green, so we expect a real heathy amount of interest from potential buyers due to the flats long list of qualities, and of course value for money!

Remaining Lease Length: 116 Years
Ground Rent: £250 per annum
Service Charge: £1150 per annum
Energy Efficiency Rating: D
Council Tax Band: A

Talk to Max Smith from Acorn (Estate agents in Lewisham)

 

Use our calculator to work out potential mortgage repayments and stamp duty costs. Please note, these calculators are for general interest only and must not be relied on. Speak to our Mortgage Scout team for further information and advice. 

Powered by

Total Mortgage

£

Estimated Monthly Mortgage Payment

£

  • Powered by

Lewisham Area Guide

Explore the areas we serve – from parks, entertainment and transport links, to shopping, eating and drinking.

Dive into property knowledge

Visit the AcornIntel knowledge-base, our library of articles to help you make sense of all things property, or send your questions to our panel of property experts.

Get your property valued

Looking to sell or let your property? Get a free property valuation from one of our experts.

Top