The Acorn Group is London’s largest multi-brand estate agency. We offer our clients the best brands, with the best people, in the best locations.

 

Close

Asking price £350,000 leasehold

Apartment for sale - Seren Park Gardens, SE3

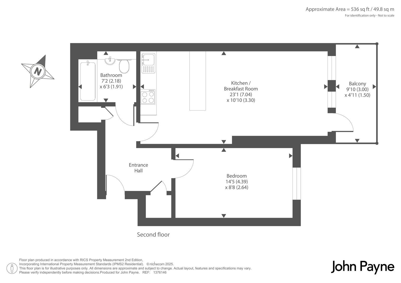
This beautifully proportioned one-bedroom apartment is located on the second floor of the sought-after Seren Park Gardens development, perfectly positioned on the edge of Greenwich Park and just moments from Maze Hill Station. Designed with modern living in mind, the property offers a bright, contemporary interior featuring clean lines and stylish finishes throughout.

The open-plan kitchen and reception area are bathed in natural light, providing an inviting space ideal for both relaxation and entertaining. Floor-to-ceiling sliding doors open onto a private balcony, offering a tranquil outdoor setting with views over the landscaped communal gardens and surrounding greenery.

The spacious double bedroom includes built-in storage, while the bathroom boasts a high-quality finish with sleek, modern fittings and a refined neutral décor. Additional benefits include lift access, secure entry, and beautifully maintained communal areas.

The development is found only moments from Maze Hill station, which has easy access to the City. Blackheath and Greenwich are both a short walk away offering boutique style shopping and independent cafés, bars and restaurants. Greenwich Park is also a five minute stroll away. There is also easy access to the Jubilee line at North Greenwich station and the DLR at the Cutty Sark.

Lease - 125 years from 24th June 2009 (109 years remaining)
Service Charge - TBC
Ground Rent - TBC
The Royal Borough of Greenwich - Council Tax Band - C
Energy Efficiency Rating - B

Talk to Will McElligott from John Payne (Estate agents in Blackheath Standard)

 

Use our calculator to work out potential mortgage repayments and stamp duty costs. Please note, these calculators are for general interest only and must not be relied on. Speak to our Mortgage Scout team for further information and advice. 

Powered by

Total Mortgage

£

Estimated Monthly Mortgage Payment

£

  • Powered by

Blackheath Standard Area Guide

Explore the areas we serve – from parks, entertainment and transport links, to shopping, eating and drinking.

Dive into property knowledge

Visit the AcornIntel knowledge-base, our library of articles to help you make sense of all things property, or send your questions to our panel of property experts.

Get your property valued

Looking to sell or let your property? Get a free property valuation from one of our experts.

Top