The Acorn Group is London’s largest multi-brand estate agency. We offer our clients the best brands, with the best people, in the best locations.

 

Close

OIEO £300,000 leasehold

Apartment for sale - Ridge Place, Kent, BR5

Langford Russell are delighted to present this modern and spacious two-bedroom apartment, set within a sought-after gated development in Orpington.

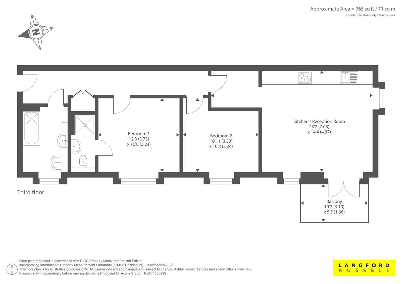
Internally, the property comprises a generous and welcoming entrance hall with ample storage, leading into a bright, open-plan reception room and a fully fitted kitchen with integrated appliances. The reception space opens out onto a private west-facing balcony, providing open views and the perfect spot to unwind or entertain.

There are two well-proportioned double bedrooms, with the principal bedroom benefiting from a modern en-suite bathroom. A sleek, three-piece family bathroom and additional storage cupboards complete the internal layout.

Further benefits include one allocated parking space within the secure gated development.

The location is ideal, with Nugent Retail Park and Orpington High Street close by, offering a wide range of shops, cafes, and restaurants. St Mary Cray Station is just 0.4 miles away, providing excellent direct rail links into both central London and Kent.

Tenure – Leasehold (125 Years Remaining From 1st June 2015)
Service Charge – £1,900 Per Annum
Ground Rent – £300 Per Annum

Council Tax London Borough Of Bromley Tax Band – C / Energy Efficiency Rating - C

Talk to Oliver Pettman from Langford Russell (Estate agents in Orpington)

 

Use our calculator to work out potential mortgage repayments and stamp duty costs. Please note, these calculators are for general interest only and must not be relied on. Speak to our Mortgage Scout team for further information and advice. 

Powered by

Total Mortgage

£

Estimated Monthly Mortgage Payment

£

  • Powered by

Orpington Area Guide

Explore the areas we serve – from parks, entertainment and transport links, to shopping, eating and drinking.

Dive into property knowledge

Visit the AcornIntel knowledge-base, our library of articles to help you make sense of all things property, or send your questions to our panel of property experts.

Get your property valued

Looking to sell or let your property? Get a free property valuation from one of our experts.

Top