The Acorn Group is London’s largest multi-brand estate agency. We offer our clients the best brands, with the best people, in the best locations.

 

Close

OIEO £450,000 shareOfFreehold

Apartment - Rectory Road, BR3

Langford Russell are pleased to present to the market this spacious ground floor property in Beckenham, Offered Chain Free.

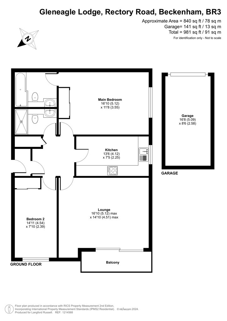
Located on the ground floor, the property comprises; a hallway leading into well-proportioned reception room which offers plenty of natural light with room also for dining with direct access to a private balcony, a modern kitchen with ample storage space and stone worktops, the master bedroom which is larger than average has the benefit of a large en-suite and built in wardrobe, a second double bedroom with storage and modern family shower room.

Additional benefits include gas central heating, double glazing, use of communal garden, off street parking and garage.

Beckenham is a popular suburban town and leafy residential area and is highly popular with both families and commuters who are spoilt for choice with numerous Train stations including Beckenham Junction, New Beckenham, Beckenham Hill, Clock House, and Ravensbourne with services into Central London. Trams run frequently into both Croydon through to Wimbledon and Bus services that provide connections into Bromley and Crystal Palace. There is all you need for convenience with shops, eateries, gyms and parks nearby of the High Street.

Tenure: Share of Freehold - we understand that the property is being sold with a share of the freehold, the details of which have been unchecked.

Tenure – Share of Freehold
Lease Length - 999 Years from 25 March 2008
Service Charge - £1,880 per annum
Ground Rent - N/A

Council Tax Band E
Energy Efficiency Rating C

Talk to Eddie Youds from Langford Russell (Estate agents in Beckenham)

 

Use our calculator to work out potential mortgage repayments and stamp duty costs. Please note, these calculators are for general interest only and must not be relied on. Speak to our Mortgage Scout team for further information and advice. 

Powered by

Total Mortgage

£

Estimated Monthly Mortgage Payment

£

  • Powered by

Beckenham Area Guide

Explore the areas we serve – from parks, entertainment and transport links, to shopping, eating and drinking.

Dive into property knowledge

Visit the AcornIntel knowledge-base, our library of articles to help you make sense of all things property, or send your questions to our panel of property experts.

Get your property valued

Looking to sell or let your property? Get a free property valuation from one of our experts.

Top