The Acorn Group is London’s largest multi-brand estate agency. We offer our clients the best brands, with the best people, in the best locations.

 

Close

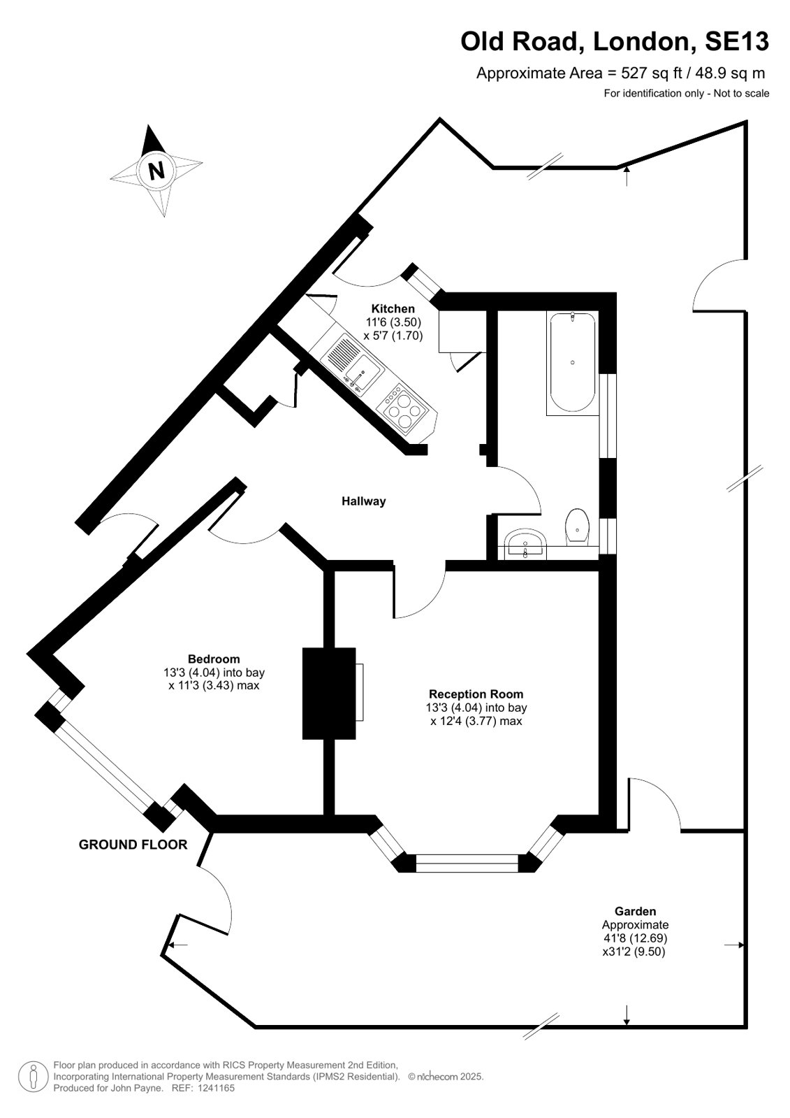
OIEO £299,995 leasehold

Apartment - Old Road, SE13

A ground floor one bedroom garden flat offering versatile accommodation and situated in a popular location with easy access to transport links and Manor House Gardens.

The flat is in excellent decorative order and briefly comprises of a spacious entrance hall, lounge with fireplace, fitted kitchen, double bedroom and a bathroom. Other benefits include double glazing, gas central heating and a private, secluded wrap around garden with seating area.

The flat offers flexible living space - can be one bed with living room or two bedrooms/study spaces with a kitchen/dining area. Also, subject to planning permission, there is potential for the flat to be reconfigured or extended.

This flat is perfectly located with a great choice of transport links, bus routes, restaurants, and Lewisham Town Centre, with its shopping centre nearby. There is plenty of choice for green spaces with Manor House Gardens entrance at the end of the road. Blackheath is just a mile walk with even more boutique shops, restaurants & bars to enjoy and the famous Greenwich Park to explore. Lewisham Station (Zone 2) & DLR are within easy reach offering a regular service into the city.

Lease being extended by the current owner to over 200 years
Service Charge - £100 PA
Ground Rent - £10 PA
London Borough of Lewisham - Council Tax Band - B
Energy Efficiency Rating - D

Talk to Chris Wadeson from John Payne (Estate agents in Lee)

 

Use our calculator to work out potential mortgage repayments and stamp duty costs. Please note, these calculators are for general interest only and must not be relied on. Speak to our Mortgage Scout team for further information and advice. 

Powered by

Total Mortgage

£

Estimated Monthly Mortgage Payment

£

  • Powered by

Lee Area Guide

Explore the areas we serve – from parks, entertainment and transport links, to shopping, eating and drinking.

Dive into property knowledge

Visit the AcornIntel knowledge-base, our library of articles to help you make sense of all things property, or send your questions to our panel of property experts.

Get your property valued

Looking to sell or let your property? Get a free property valuation from one of our experts.

Top