The Acorn Group is London’s largest multi-brand estate agency. We offer our clients the best brands, with the best people, in the best locations.

 

Close

Guide price £475,000 leasehold

Apartment for sale - Oglander Road, SE15

Guide Price: £475,000 to £500,000

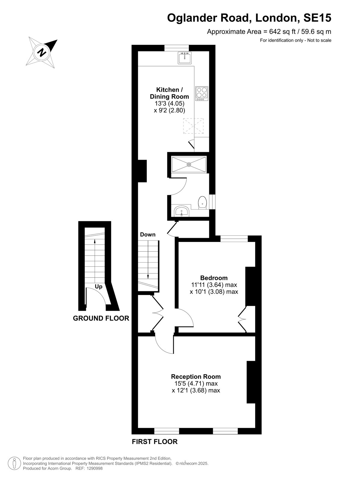
Immaculate, first floor Victorian conversion, situated on one of Peckham's most sought-after roads, Oglander Road, boasting 642sqft of beautifully presented living accommodation.

Comprising of; a front reception room which is flooded with tons of natural light through sash windows, a generous-sized bedroom with built in storage, well-presented bathroom and recently installed contemporary kitchen/diner to the rear. This property is packed full of charm and is sure to impress!

Peckham Rye mainline station and Bellenden Village with an array of independent shops, bars and restaurants are on your doorstep! Also, the beautiful Warwick Gardens, Goose Green and Peckham Rye Common are all within easy reach.

Leasehold: 105 years | Ground Rent: £10pa | Service Charge: £0pa | Council Tax: B | EPC Rating: C

Talk to James Moss from Acorn (Estate agents in Peckham Rye)

 

Use our calculator to work out potential mortgage repayments and stamp duty costs. Please note, these calculators are for general interest only and must not be relied on. Speak to our Mortgage Scout team for further information and advice. 

Powered by

Total Mortgage

£

Estimated Monthly Mortgage Payment

£

  • Powered by

Peckham Rye Area Guide

Explore the areas we serve – from parks, entertainment and transport links, to shopping, eating and drinking.

Dive into property knowledge

Visit the AcornIntel knowledge-base, our library of articles to help you make sense of all things property, or send your questions to our panel of property experts.

Get your property valued

Looking to sell or let your property? Get a free property valuation from one of our experts.

Top