The Acorn Group is London’s largest multi-brand estate agency. We offer our clients the best brands, with the best people, in the best locations.

 

Close

Asking price £475,000 shareOfFreehold

Apartment - Marmora Road, SE22

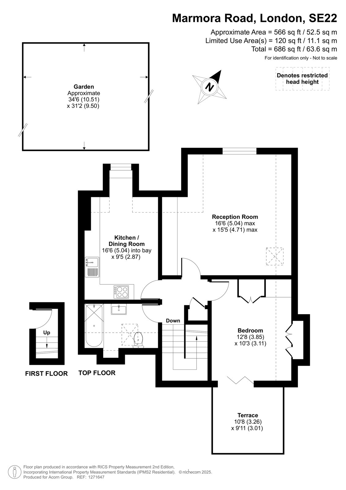
Nestled on the coveted Marmora Road, this delightful one-bedroom flat offers a perfect blend of traditional charm and modern convenience. Set within a beautifully converted Victorian house, this spacious top-floor residence is designed for those who appreciate both comfort and style.

As you step inside, you are greeted by an inviting ambiance that flows throughout the well-proportioned rooms. The generous double bedroom features built-in double wardrobes and ample cupboard space, ensuring your belongings are neatly tucked away while maintaining an uncluttered aesthetic. The heart of the home is undoubtedly the expansive sitting room, ideal for hosting friends or enjoying intimate evenings at home. For added versatility, a cleverly concealed pull-down double bed seamlessly integrates into the wall, providing convenient accommodation for visiting guests without compromising on space.

Bi-fold doors lead from the bedroom to your very own large private south-facing sun terrace, overlooking tranquil rear gardens - a true oasis perfect for summer dining or simply soaking up the sun with a good book. Imagine hosting barbecues or sipping morning coffee amidst the serene backdrop! Additionally, there is a private section of the rear garden that backs onto Benchley gardens which gives a tranquil feel with lots of nature. The space is big enough to have a small allotment as well as have space to sit/gather with friends.

The kitchen is equally impressive, offering ample storage and worktop space with enough room for a dining table and chairs. With several under-eaves cupboards and loft access via a ladder, storage will never be an issue in this charming flat.

Location is key here; just a short stroll from Honor Oak Park station on the Overground network provides swift connections to London Bridge and beyond. For those needing further transport options, Peckham Rye Station is only a quick bus ride away. A vibrant selection of shops is within five minutes' walk, along with beautiful Peckham Rye Park nearby, ideal for leisurely walks or weekend activities.

This enchanting flat presents an exceptional opportunity to embrace East Dulwich's community spirit while enjoying your own slice of tranquillity. Don’t miss out on making this charming property your new home!

Share of Freehold
Service Charge: £0 Per Annum
Ground Rent: £0 Per Annum
Council Tax Band: B
Energy Performance Rating: D

Talk to James Keen from Acorn (Estate agents in Dulwich)

 

Use our calculator to work out potential mortgage repayments and stamp duty costs. Please note, these calculators are for general interest only and must not be relied on. Speak to our Mortgage Scout team for further information and advice. 

Powered by

Total Mortgage

£

Estimated Monthly Mortgage Payment

£

  • Powered by

Dulwich Area Guide

Explore the areas we serve – from parks, entertainment and transport links, to shopping, eating and drinking.

Dive into property knowledge

Visit the AcornIntel knowledge-base, our library of articles to help you make sense of all things property, or send your questions to our panel of property experts.

Get your property valued

Looking to sell or let your property? Get a free property valuation from one of our experts.

Top