The Acorn Group is London’s largest multi-brand estate agency. We offer our clients the best brands, with the best people, in the best locations.

 

Close

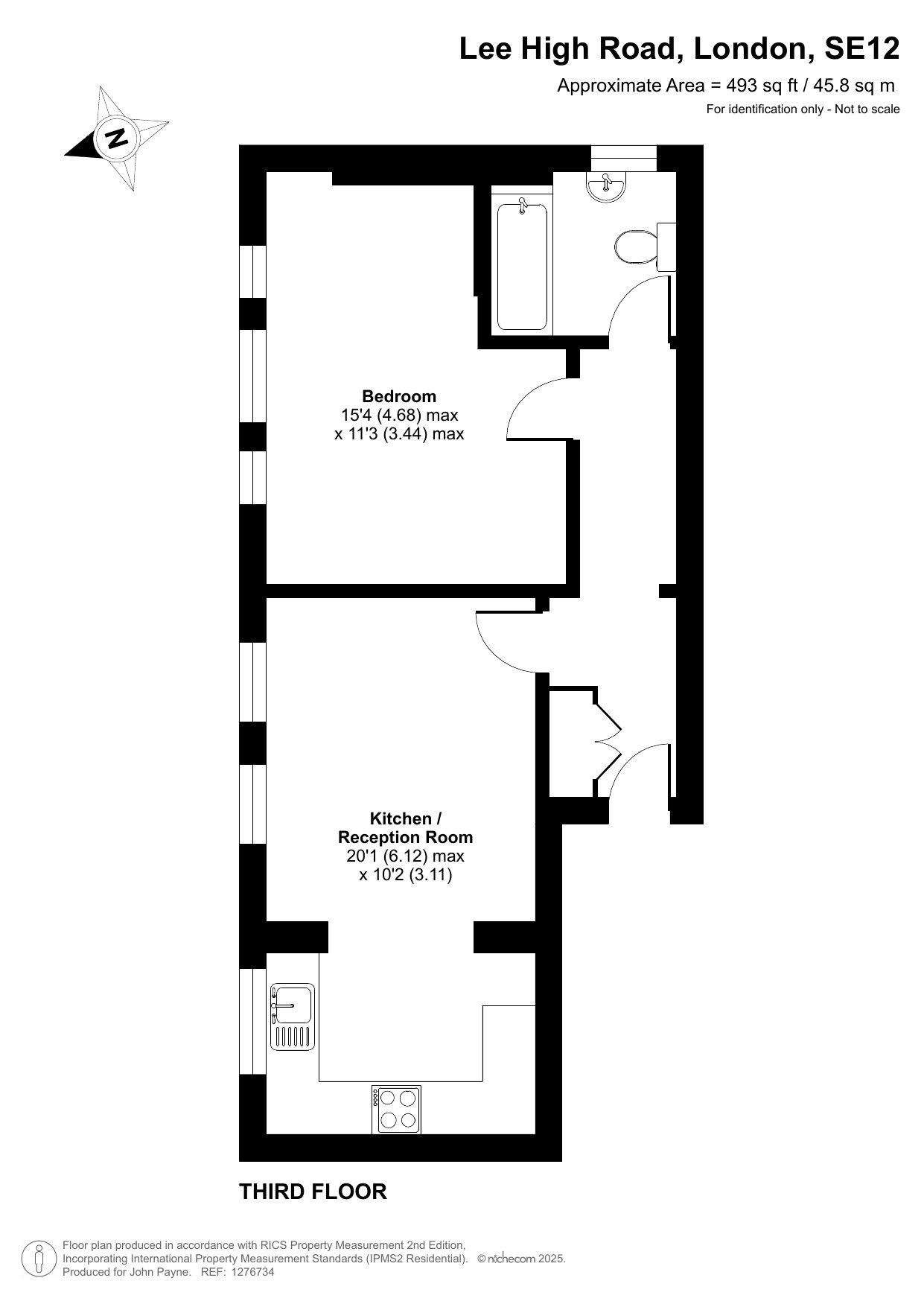
Guide price £235,000 leasehold

Apartment - Lee High Road, SE12

This one-bedroom top-floor flat offers a perfect blend of comfort and convenience, situated in a sought-after area.

The property boasts a bright, airy living space, flooded with natural light. The cozy, inviting living/kitchen area is ideal for relaxing or entertaining guests. The generously sized double bedroom offers ample space for furniture and storage, while the white bathroom suite features a shower over the bath.
This property further boasts communal off street parking.

Enjoy elevated views of the surrounding area and the convenience of being close to local shops, cafes, and public transport links. This flat is perfectly located, with excellent transport connections, including bus routes and nearby stations like Blackheath, Hither Green and Lewisham, which offer quick access into the city centre.

For leisure, you'll have a great choice of green spaces nearby, including Greenwich Park, Gilmore Park, Manor House Gardens and Blackheath, which is just a mile walk away, offering boutique shops, restaurants, and bars. Lewisham Town Centre is also nearby, with a new shopping centre and cinema due to open soon. This flat is an ideal choice for first-time buyers or those looking for a buy-to-let investment.

Lease - 189 years from 1981 - 145 years remaining
Service Charge - £1,100 PA
Ground Rent - £50 PA
The London Borough of Lewisham - Council Tax Band - B
Energy Efficiency Rating - C

Talk to Chris Wadeson from John Payne (Estate agents in Lee)

 

Use our calculator to work out potential mortgage repayments and stamp duty costs. Please note, these calculators are for general interest only and must not be relied on. Speak to our Mortgage Scout team for further information and advice. 

Powered by

Total Mortgage

£

Estimated Monthly Mortgage Payment

£

  • Powered by

Lee Area Guide

Explore the areas we serve – from parks, entertainment and transport links, to shopping, eating and drinking.

Dive into property knowledge

Visit the AcornIntel knowledge-base, our library of articles to help you make sense of all things property, or send your questions to our panel of property experts.

Get your property valued

Looking to sell or let your property? Get a free property valuation from one of our experts.

Top