The Acorn Group is London’s largest multi-brand estate agency. We offer our clients the best brands, with the best people, in the best locations.

 

Close

Asking price £325,000 shareOfFreehold

Apartment - Lawrie Park Road, SE26

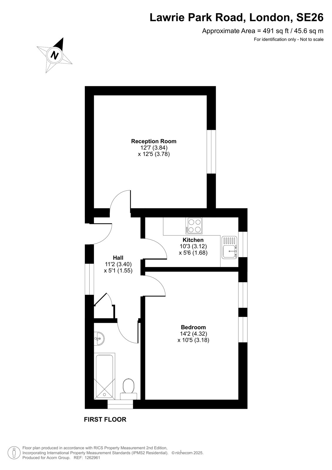
Located on the first floor of a stunning, locally listed Victorian building, this one-bedroom flat offers a perfect blend of period charm and modern living. Originally built in the 1860s, the property was converted into flats in the 1930s/1940s, preserving its historic character while incorporating updates for contemporary living. With just six flats in the building, it offers a sense of exclusivity and a close-knit community.

The flat comes with a share of freehold and is ideally situated directly opposite the magnificent Crystal Palace Park, providing a tranquil and scenic setting. The large communal garden enhances the appeal, offering a peaceful outdoor space for relaxation and socializing.

Inside, the flat is filled with natural light, thanks to dual aspect windows that create a bright and airy atmosphere. The spacious living areas offer versatility, perfect for both entertaining and everyday comfort.

Conveniently located within walking distance of Penge East and Penge West stations, the flat benefits from excellent transport links to central London and beyond. Whether you’re enjoying the nearby park or commuting into the city, this charming flat combines historical elegance with modern convenience.

Lease Length: 996 Years
Annual Service Charge: £2,700
Council Tax Band: B
Energy Efficiency Rating: D

Talk to Harrison White from Acorn (Estate agents in Sydenham)

 

Use our calculator to work out potential mortgage repayments and stamp duty costs. Please note, these calculators are for general interest only and must not be relied on. Speak to our Mortgage Scout team for further information and advice. 

Powered by

Total Mortgage

£

Estimated Monthly Mortgage Payment

£

  • Powered by

Sydenham Area Guide

Explore the areas we serve – from parks, entertainment and transport links, to shopping, eating and drinking.

Dive into property knowledge

Visit the AcornIntel knowledge-base, our library of articles to help you make sense of all things property, or send your questions to our panel of property experts.

Get your property valued

Looking to sell or let your property? Get a free property valuation from one of our experts.

Top