The Acorn Group is London’s largest multi-brand estate agency. We offer our clients the best brands, with the best people, in the best locations.

 

Close

£475,000 leasehold

Apartment for sale - Lambarde Square, SE10

Located in the heart of Greenwich, this spacious EWS1 COMPLIANT two-bedroom, two-bathroom apartment in the sought-after Lambarde Square development offers contemporary urban living just moments from excellent transport links and green open spaces.

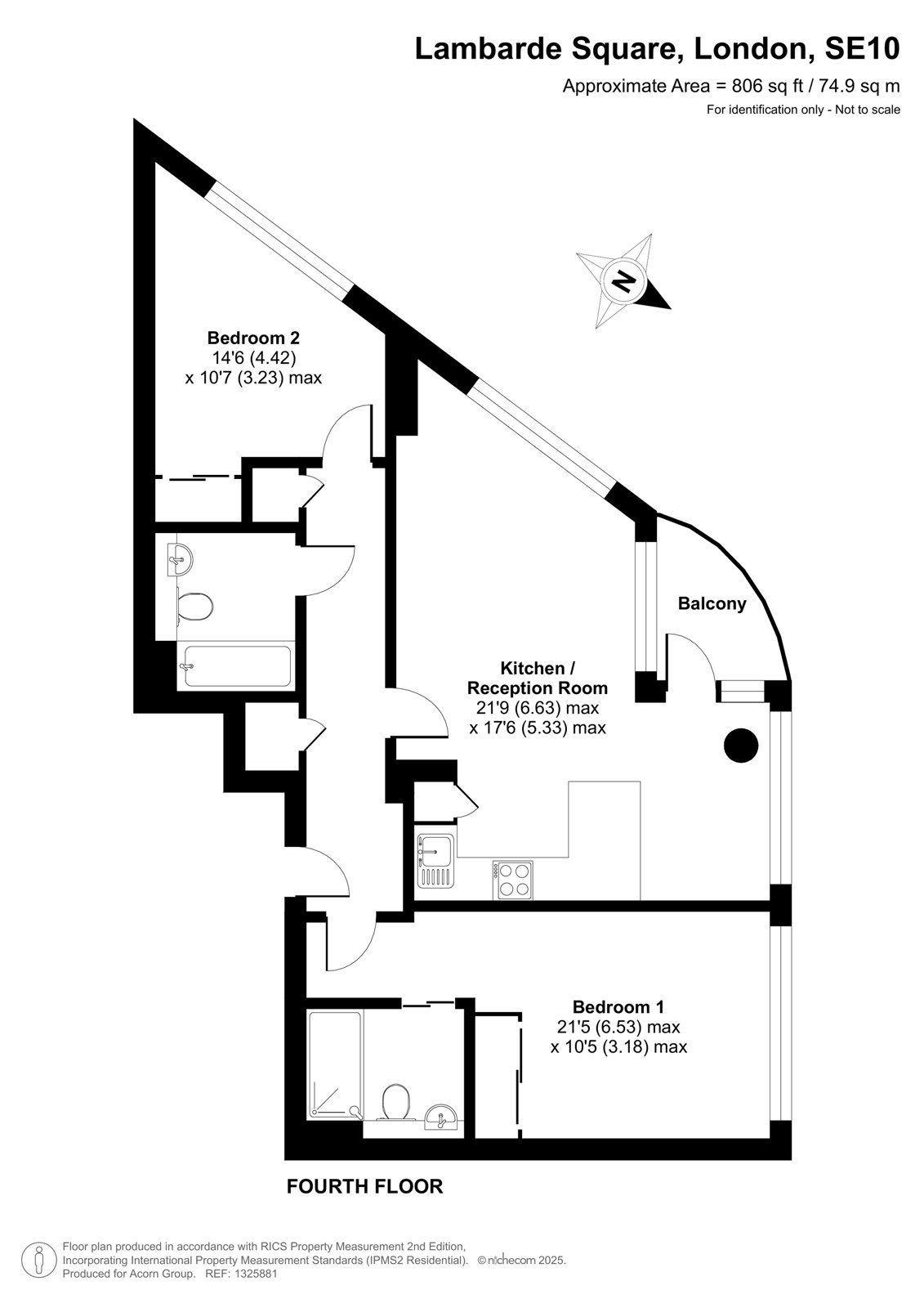
Set on the fourth floor, the property spans approximately 806 sq. ft. and boasts a well-designed layout that maximises space and natural light. The bright and airy open-plan kitchen/reception room features floor-to-ceiling windows, a sleek integrated kitchen, and direct access to a private curved balcony, ideal for relaxing or entertaining.

The principal bedroom is generously proportioned and benefits from a stylish en-suite shower room and built-in storage. The second double bedroom also offers ample space and sits adjacent to a modern family bathroom.

Additional features include a welcoming entrance hall with storage, double glazing throughout, secure entry, and lift access within the development.

Residents of Lambarde Square enjoy proximity to Greenwich Park, Cutty Sark DLR, and a host of riverside amenities, restaurants, and cultural attractions. The location also provides easy access to Canary Wharf and Central London.

Ideal for first-time buyers, investors, or professionals looking for a stylish and convenient London home.

Leasehold: 999 years (less 3 days) from 9 October 2012 |Service Charge: £3 663 l Ground Rent: £1

Talk to Matthew Wright from John Payne (Estate agents in Greenwich East)

 

Use our calculator to work out potential mortgage repayments and stamp duty costs. Please note, these calculators are for general interest only and must not be relied on. Speak to our Mortgage Scout team for further information and advice. 

Powered by

Total Mortgage

£

Estimated Monthly Mortgage Payment

£

  • Powered by

Area Guide

Explore the areas we serve – from parks, entertainment and transport links, to shopping, eating and drinking.

Dive into property knowledge

Visit the AcornIntel knowledge-base, our library of articles to help you make sense of all things property, or send your questions to our panel of property experts.

Get your property valued

Looking to sell or let your property? Get a free property valuation from one of our experts.

Top