The Acorn Group is London’s largest multi-brand estate agency. We offer our clients the best brands, with the best people, in the best locations.

 

Close

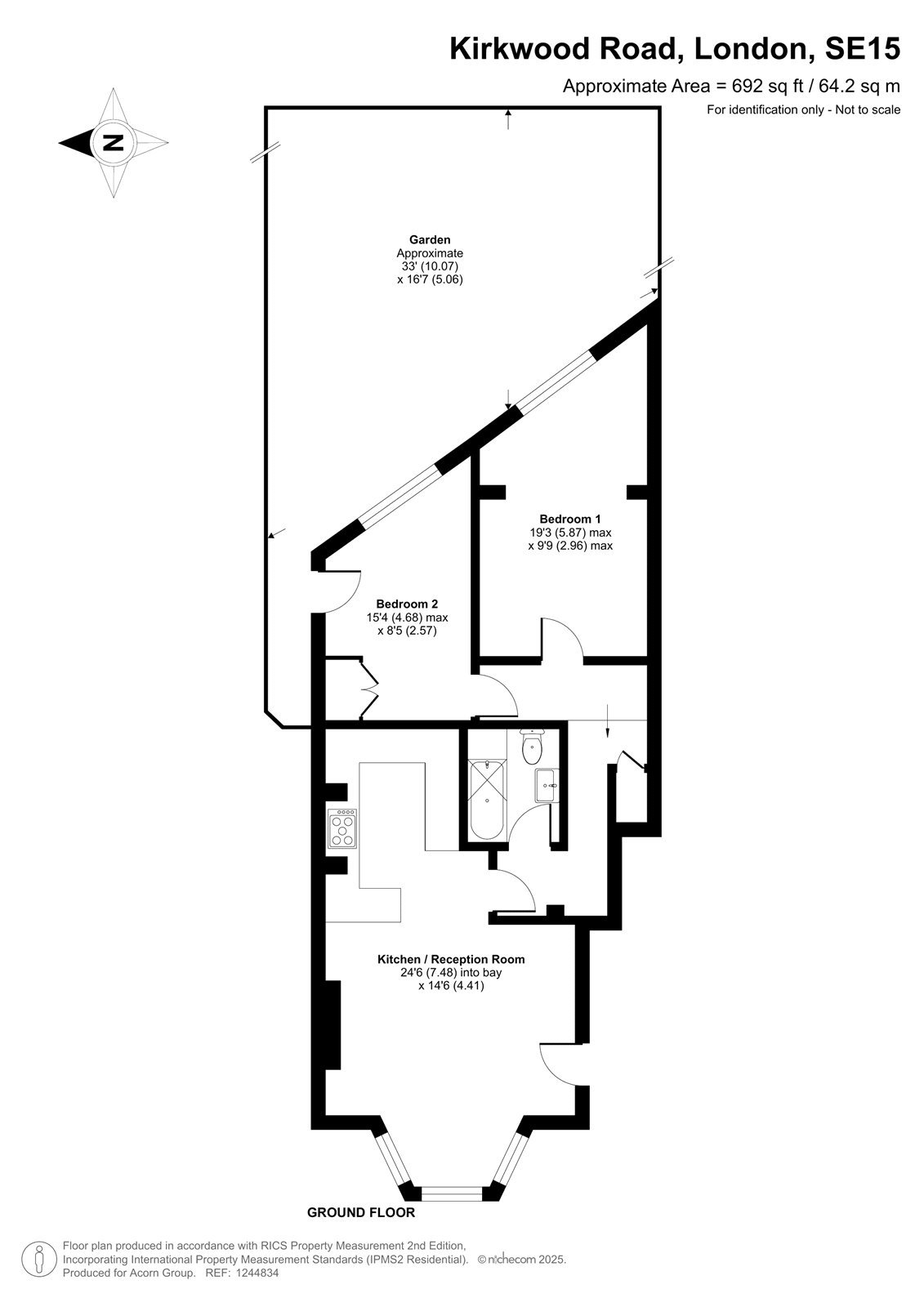
Guide price £525,000 shareOfFreehold

Apartment - Kirkwood Road, SE15

Guide Price £525,000 - £550,000

Cleverly designed and tastefully decorated two bedroom ground floor Victorian conversion with private 37ft rear garden. Situated on a prime residential street in the leafy Nunhead, well-connected with x3 mainline train stations just a short walk away.

692sqft of beautifully presented accommodation briefly comprises; an expansive open plan kitchen/dining space in which the kitchen has built-in appliances, tons of natural light and enough space to dine, a three-piece bathroom, two double bedrooms and private east facing garden. This property has been tastefully decorated by its current owners and would be the perfect first time purchase.

Situated within short walking distance from Nunhead (0.2mi), Queens Road (0.4mi) and Peckham Rye (0.7mi) stations as well as within easy reach of local high streets such as Nunhead Green, Queens Road and Peckham Rye which all boast an array of independent shops, bars and restaurants.

Share Of Freehold
Council Tax Band: C
Energy Efficiency Rating: C

Talk to James Moss from Acorn (Estate agents in Peckham Rye)

 

Use our calculator to work out potential mortgage repayments and stamp duty costs. Please note, these calculators are for general interest only and must not be relied on. Speak to our Mortgage Scout team for further information and advice. 

Powered by

Total Mortgage

£

Estimated Monthly Mortgage Payment

£

  • Powered by

Peckham Rye Area Guide

Explore the areas we serve – from parks, entertainment and transport links, to shopping, eating and drinking.

Dive into property knowledge

Visit the AcornIntel knowledge-base, our library of articles to help you make sense of all things property, or send your questions to our panel of property experts.

Get your property valued

Looking to sell or let your property? Get a free property valuation from one of our experts.

Top