The Acorn Group is London’s largest multi-brand estate agency. We offer our clients the best brands, with the best people, in the best locations.

 

Close

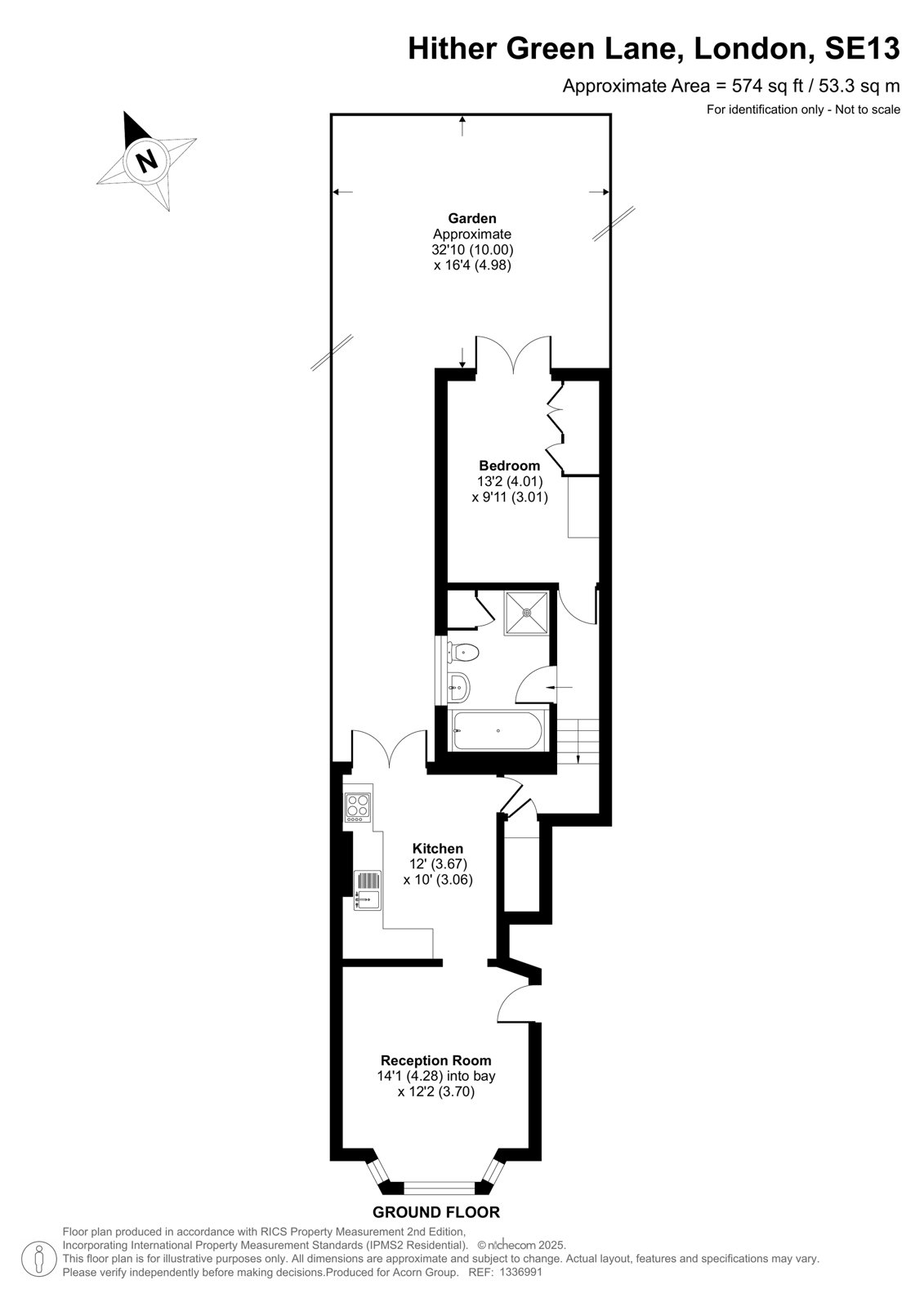
Asking price £425,000 leasehold

Apartment for sale - Hither Green Lane, SE13

Acorn are pleased to welcome to the market this beautifully presented and generously proportioned one-bedroom Victorian conversion occupies the ground floor of a smart bay-fronted terrace on a quiet residential street in Hither Green. Sitting circa 600 s/ft of internal space, a private mature garden and a share of the freehold, the property is sold chain-free and in excellent condition throughout.

The apartment benefits from its own entrance off a shared hallway (with just one flat above). Upon entry, you’re welcomed into a bright and spacious bay-windowed reception room, which flows seamlessly through to a modern kitchen and dining area. The kitchen features contemporary fitted units, clean lines and double doors that open directly onto a well-maintained rear garden complete with decking, lawn, established planting, and a crescent-shaped seating area, the perfect space for summer BBQs! Down a short internal staircase sits a sleek modern bathroom with a window, double-ended bath, freestanding walk-in shower, and high-quality fittings. At the rear of the home, the calm and spacious double bedroom includes a full wall of integrated wardrobes and opens directly onto the garden via a second set of French doors. The property comes with residential architectural plans for a wrap-around rear extension, subject to planning consent. Previous planning permission had been granted offering a fantastic opportunity to add space and value in future.

Just five minutes on foot from Hither Green Station, you’ll enjoy quick access to central London, with journeys to London Bridge taking just 10 minutes and Cannon Street 13 minutes. There are also several bus routes nearby, providing excellent transport links across South East London.
Local amenities are plentiful, with independent cafés, shops and restaurants on your doorstep including Hope Deli, Le Delice, a Co-op, and the popular Sarah’s Place cocktail bar. The Station Hotel, a well-regarded local pub, is just a short walk away, while nearby Lewisham town centre offers a wide range of high street stores, supermarkets, a daily market, bowling, and a choice of restaurants and cafés. On Saturdays, the highly acclaimed Brockley Market offers a more artisanal, foodie option just a short distance away. For green space, Mountsfield Park is your nearest and offers tennis and basketball courts, regular fitness activities including Parkrun, and a community café. You’re also close to Manor House Gardens with its ornamental lake and café, Hilly Fields, and Ladywell Fields. Both Greenwich Park and Blackheath Common are within a short cycle, drive or bus ride, offering further access to some of London’s most historic and picturesque open spaces.

Share of Freehold - 189 years from 25 December 1985
EPC Rating C
Council Tax Band B
Service Charge TBC

Talk to Max Smith from Acorn (Estate agents in Lewisham)

 

Use our calculator to work out potential mortgage repayments and stamp duty costs. Please note, these calculators are for general interest only and must not be relied on. Speak to our Mortgage Scout team for further information and advice. 

Powered by

Total Mortgage

£

Estimated Monthly Mortgage Payment

£

  • Powered by

Lewisham Area Guide

Explore the areas we serve – from parks, entertainment and transport links, to shopping, eating and drinking.

Dive into property knowledge

Visit the AcornIntel knowledge-base, our library of articles to help you make sense of all things property, or send your questions to our panel of property experts.

Get your property valued

Looking to sell or let your property? Get a free property valuation from one of our experts.

Top