The Acorn Group is London’s largest multi-brand estate agency. We offer our clients the best brands, with the best people, in the best locations.

 

Close

Guide price £525,000 shareOfFreehold

Apartment for sale - Hindmans Road, SE22

Guide Price: £525,000-£550,000

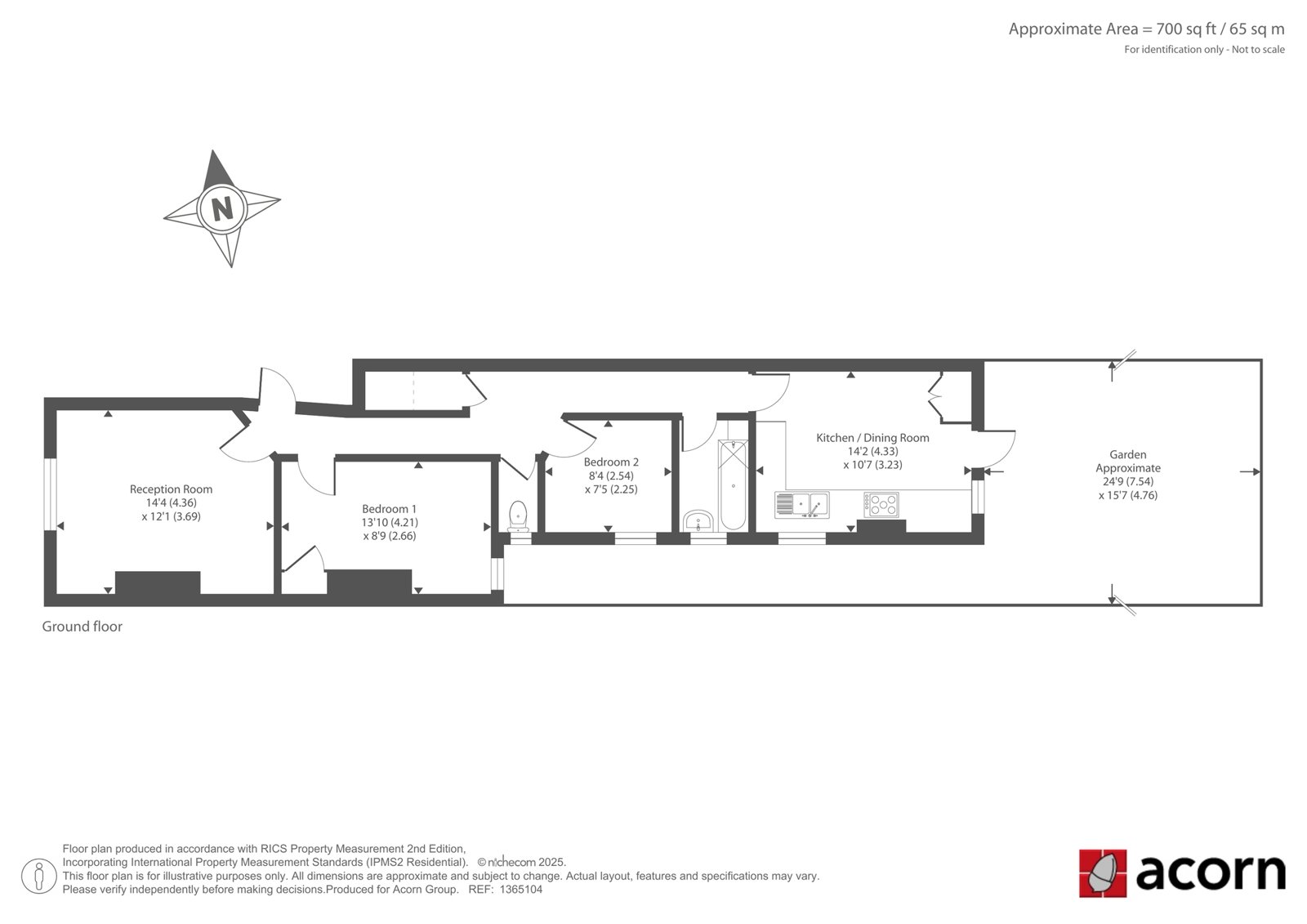
Beautifully finished to a high standard, this bright and spacious two-bedroom garden flat sits on the peaceful, residential Hindmans Road—just a short walk from the vibrant shops, cafés, and restaurants of Lordship Lane, as well as local parks and excellent transport links.

The property provides generous living and entertaining space, featuring a contemporary, well-appointed kitchen with ample room for a dining table, plus a separate reception room at the front. Period details have been sensitively preserved and are complemented by double glazing and wood flooring throughout, except in the living room.

A stylish, modern bathroom enhances the home’s overall contemporary feel. One of the property’s standout features is its sole access to a private, low-maintenance rear garden—perfect for outdoor dining, entertaining, or simply relaxing in a tranquil setting.

Ideally located for commuters, the flat offers easy access to Peckham Rye, East Dulwich, Forest Hill, and Denmark Hill stations, all providing fast, direct services to central London in under 10 minutes. With excellent local schools and a strong community atmosphere, this home is ideal for professionals, couples, or young families seeking a stylish property in one of South London’s most sought-after neighbourhoods.

Share of Freehold: 150 years from 12 March 2008
Service Charge: £0
Ground Rent: £0
Council Tax: Band C
Energy Efficiency Rating: C

Talk to James Keen from Acorn (Estate agents in Dulwich)

 

Use our calculator to work out potential mortgage repayments and stamp duty costs. Please note, these calculators are for general interest only and must not be relied on. Speak to our Mortgage Scout team for further information and advice. 

Powered by

Total Mortgage

£

Estimated Monthly Mortgage Payment

£

  • Powered by

Dulwich Area Guide

Explore the areas we serve – from parks, entertainment and transport links, to shopping, eating and drinking.

Dive into property knowledge

Visit the AcornIntel knowledge-base, our library of articles to help you make sense of all things property, or send your questions to our panel of property experts.

Get your property valued

Looking to sell or let your property? Get a free property valuation from one of our experts.

Top