The Acorn Group is London’s largest multi-brand estate agency. We offer our clients the best brands, with the best people, in the best locations.

 

Close

OIEO £325,000 leasehold

Apartment for sale - Hindmans Road, SE22

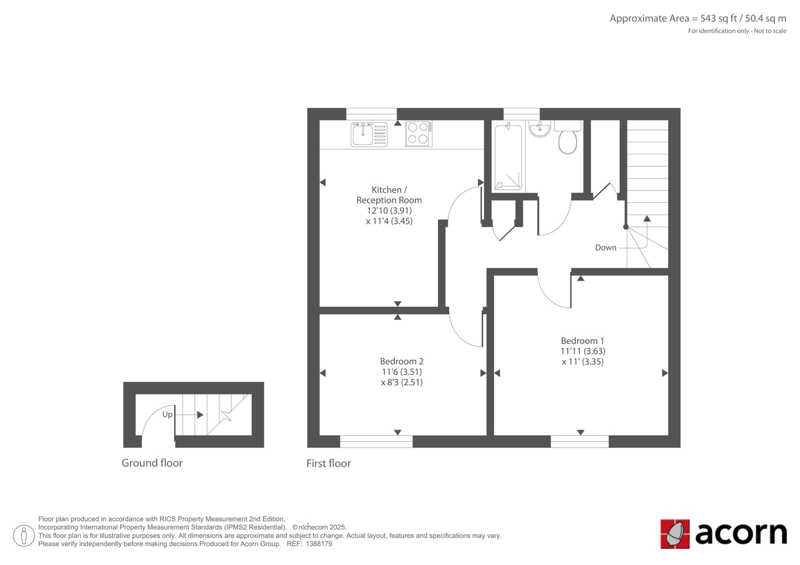
This charming two-bedroom first-floor maisonette enjoys its own private front door and is perfectly positioned in the heart of SE22, moments from everything that makes East Dulwich such a sought-after neighbourhood. Arranged over the first floor and measuring approximately 543 sq ft, the property offers a bright, well-balanced layout that feels immediately welcoming.

A private entrance at ground level opens to a staircase leading up to a central hallway, from which the entire home unfolds. The kitchen and reception room sit to the front and provide a generous, open space for cooking, dining and relaxing, with ample natural light enhancing the sense of openness. Both bedrooms are comfortable doubles, with the main bedroom positioned to the front and the second bedroom enjoying a quieter outlook to the rear. A well-appointed bathroom sits just off the hallway, alongside a useful storage cupboard.

With its own front door, well-proportioned rooms and an enviable position just moments from Lordship Lane’s cafés, independent shops and green spaces, this maisonette offers an ideal blend of comfort, convenience and vibrant urban living in one of Dulwich’s most desirable pockets. If you're seeking a home that combines privacy with superb access to local amenities, this is a wonderful opportunity.

Leasehold: 125 years from and including 30 September 2013
Service Charge: £800 pa
Ground Rent: £10 pa
Council Tax Band: B (Southwark Council)

Talk to James Keen from Acorn (Estate agents in Dulwich)

 

Use our calculator to work out potential mortgage repayments and stamp duty costs. Please note, these calculators are for general interest only and must not be relied on. Speak to our Mortgage Scout team for further information and advice. 

Powered by

Total Mortgage

£

Estimated Monthly Mortgage Payment

£

  • Powered by

Dulwich Area Guide

Explore the areas we serve – from parks, entertainment and transport links, to shopping, eating and drinking.

Dive into property knowledge

Visit the AcornIntel knowledge-base, our library of articles to help you make sense of all things property, or send your questions to our panel of property experts.

Get your property valued

Looking to sell or let your property? Get a free property valuation from one of our experts.

Top