The Acorn Group is London’s largest multi-brand estate agency. We offer our clients the best brands, with the best people, in the best locations.

 

Close

Asking price £725,000 shareOfFreehold

Apartment for sale - Hare & Billet Road, SE3

Forming part of this attractive Victorian terrace, this property boasts far reaching views directly across the heath.
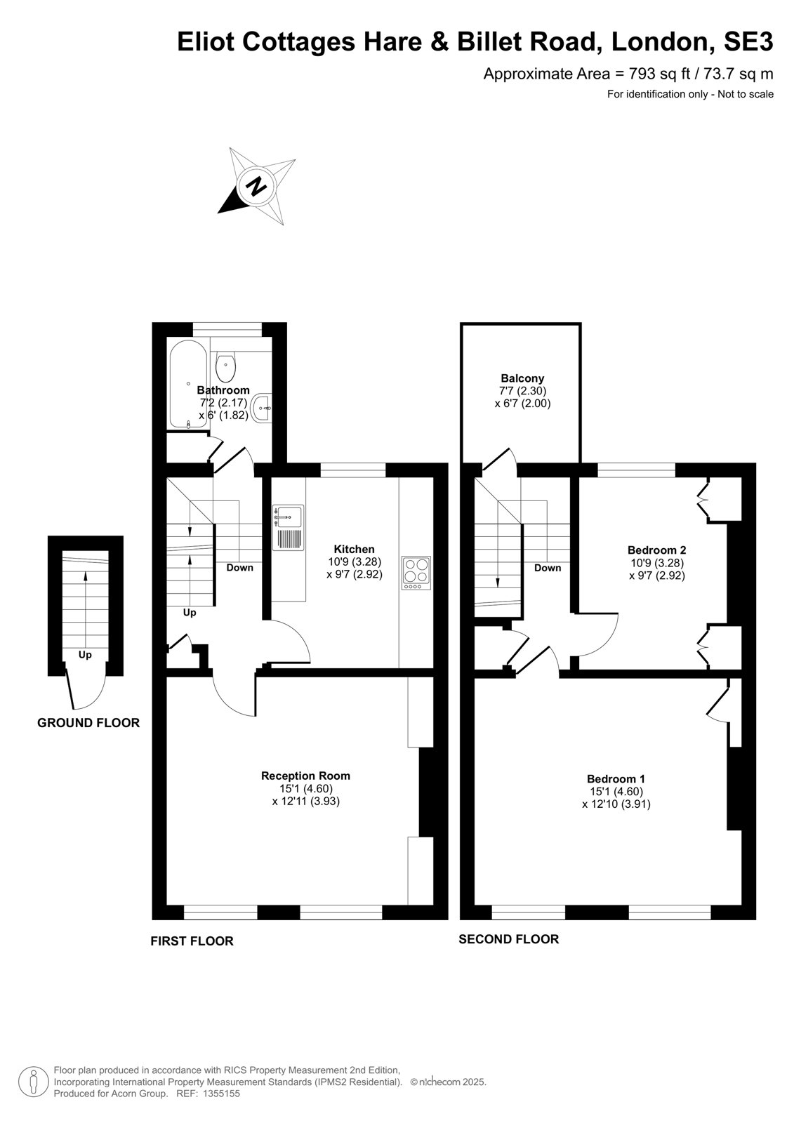
The accommodation is arranged over the 1st and 2nd floors and comprises two double bedrooms, a bright reception room with Heath views, separate fitted kitchen, modern bathroom and a private balcony to the rear.

The property is directly facing the open heath and is just a short walk from Blackheath Village with its mainline station so is ideally placed for links to the City and West End and Canary Wharf via the Docklands Light Railway connection at Lewisham.

The house is also located within the sought after John Ball primary school catchment area and in the Village itself there are many excellent restaurants, boutiques, local shops and deli's. Greenwich Park is a pleasant walk across the heath with the historic heart of West Greenwich just beyond.

Tenure - Share of Freehold
Lease 999 years from 1 January 1970 - 944 Remaining
Ground Rent N/A
Service Charge 50% Of Cost there is not a fixed amount
Local Authority Lewisham Council Tax Band E
Energy Efficiency D

Talk to Richard O'Toole from John Payne (Estate agents in Blackheath)

 

Use our calculator to work out potential mortgage repayments and stamp duty costs. Please note, these calculators are for general interest only and must not be relied on. Speak to our Mortgage Scout team for further information and advice. 

Powered by

Total Mortgage

£

Estimated Monthly Mortgage Payment

£

  • Powered by

Blackheath Area Guide

Explore the areas we serve – from parks, entertainment and transport links, to shopping, eating and drinking.

Dive into property knowledge

Visit the AcornIntel knowledge-base, our library of articles to help you make sense of all things property, or send your questions to our panel of property experts.

Get your property valued

Looking to sell or let your property? Get a free property valuation from one of our experts.

Top