The Acorn Group is London’s largest multi-brand estate agency. We offer our clients the best brands, with the best people, in the best locations.

 

Close

Asking price £350,000 shareOfFreehold

Apartment for sale - Glenton Road, SE13

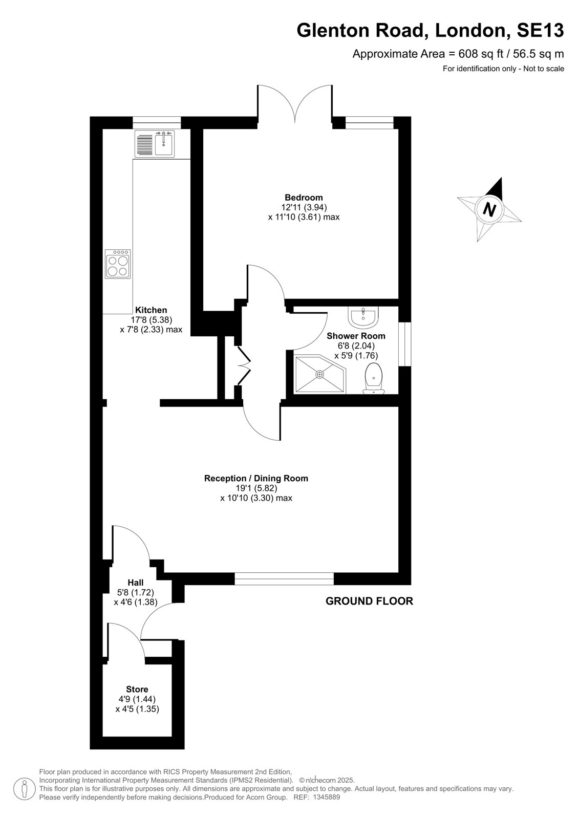
Set on the peaceful and tree-lined Glenton Road on the cusp of the ever-desirable Blackheath, this beautifully presented one-bedroom ground floor garden flat offers generous proportions throughout and direct access to a well-maintained communal garden.

Upon entry, you are welcomed into a handy porch area, ideal for hanging coats, this functional entrance sets the tone for the well-considered layout beyond. The heart of the home to the front of the building is a bright and spacious reception room, offering ample room for both living and dining areas. High ceilings and large windows flood the space with natural light perfect for entertaining guests. Leading off the reception room is a well-proportioned kitchen featuring generous worktop space and plenty of cupboards for storage. The modern bathroom is finished in a clean, neutral tone and offers a full-size shower, W/C, and wash basin. To the rear of the apartment is the large double bedroom, a true standout feature. This peaceful retreat benefits from French doors that open directly onto the communal garden, giving you an immediate connection to green space – ideal for morning coffees, summer evenings, or simply enjoying the outdoors at your leisure.

This popular location offers excellent transport links, excellent local schools, nearby attractive Manor House Gardens Park, coupled with the superb shops restaurants bars and boutiques of Blackheath Village make this the perfect buy for commuters.

SOFH Lease Length: 990 years ( 999 years beginning on and including 1 January 2016)
Service Charge: £600 pa
Council Tax Band: C

Talk to Max Smith from Acorn (Estate agents in Lewisham)

 

Use our calculator to work out potential mortgage repayments and stamp duty costs. Please note, these calculators are for general interest only and must not be relied on. Speak to our Mortgage Scout team for further information and advice. 

Powered by

Total Mortgage

£

Estimated Monthly Mortgage Payment

£

  • Powered by

Lewisham Area Guide

Explore the areas we serve – from parks, entertainment and transport links, to shopping, eating and drinking.

Dive into property knowledge

Visit the AcornIntel knowledge-base, our library of articles to help you make sense of all things property, or send your questions to our panel of property experts.

Get your property valued

Looking to sell or let your property? Get a free property valuation from one of our experts.

Top