The Acorn Group is London’s largest multi-brand estate agency. We offer our clients the best brands, with the best people, in the best locations.

 

Close

Guide price £350,000 leasehold

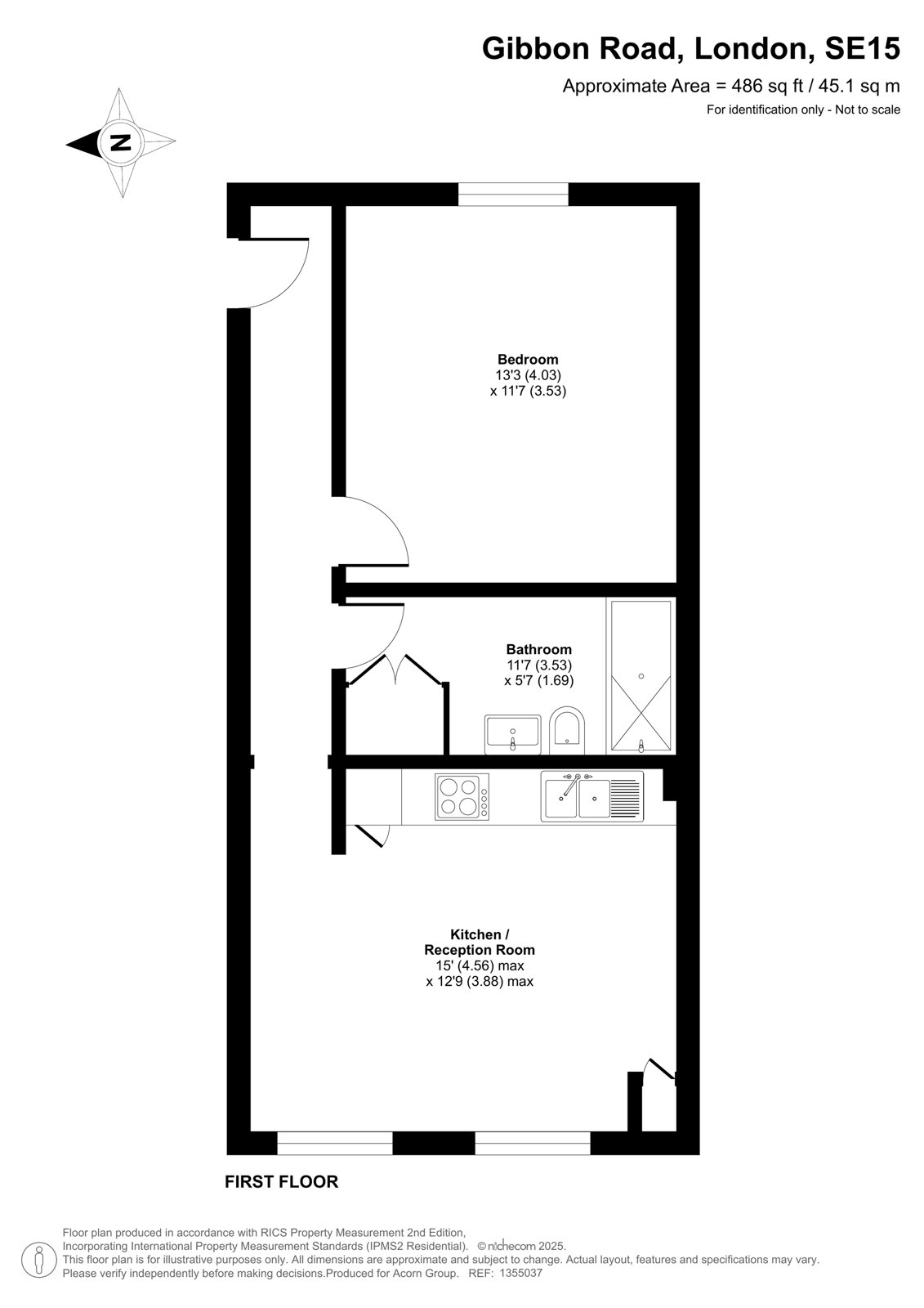
Apartment for sale - Gibbon Road, London, SE15

** GUIDE PRICE £350,000 - £400,000 **

This beautifully decorated one-bedroom apartment offers stylish, modern living in the heart of vibrant Peckham. Finished to a high standard throughout, the property features an open-plan layout that maximises space and light, perfect for both relaxing and entertaining. A brand-new bathroom adds a touch of luxury, and the apartment is truly turn-key ready—ideal for buyers looking to move straight in without lifting a finger. Offered chain free and with a long lease, it presents a rare opportunity to secure a hassle-free home in one of South East London’s most sought-after neighbourhoods. With Peckham Rye Station, popular cafes, restaurants, and independent shops just moments away, this is city living at its best.

Leasehold:125 years from 29 September 2005 (105 years remaining)
Service Charge: £840 PA
Ground Rent: £100 PA
Southwark Council - Council Tax Band - D
Energy Efficiency Rating - B

Talk to James Moss from Acorn (Estate agents in Peckham Rye)

 

Use our calculator to work out potential mortgage repayments and stamp duty costs. Please note, these calculators are for general interest only and must not be relied on. Speak to our Mortgage Scout team for further information and advice. 

Powered by

Total Mortgage

£

Estimated Monthly Mortgage Payment

£

  • Powered by

Peckham Rye Area Guide

Explore the areas we serve – from parks, entertainment and transport links, to shopping, eating and drinking.

Dive into property knowledge

Visit the AcornIntel knowledge-base, our library of articles to help you make sense of all things property, or send your questions to our panel of property experts.

Get your property valued

Looking to sell or let your property? Get a free property valuation from one of our experts.

Top