The Acorn Group is London’s largest multi-brand estate agency. We offer our clients the best brands, with the best people, in the best locations.

 

Close

OIEO £325,000 leasehold

Apartment for sale - Gautrey Road, SE15

Beautifully presented one double bedroom first floor flat occupying a sought after location close to transport links. With stripped wooden flooring and stylish interiors throughout - this property is sure to impress!

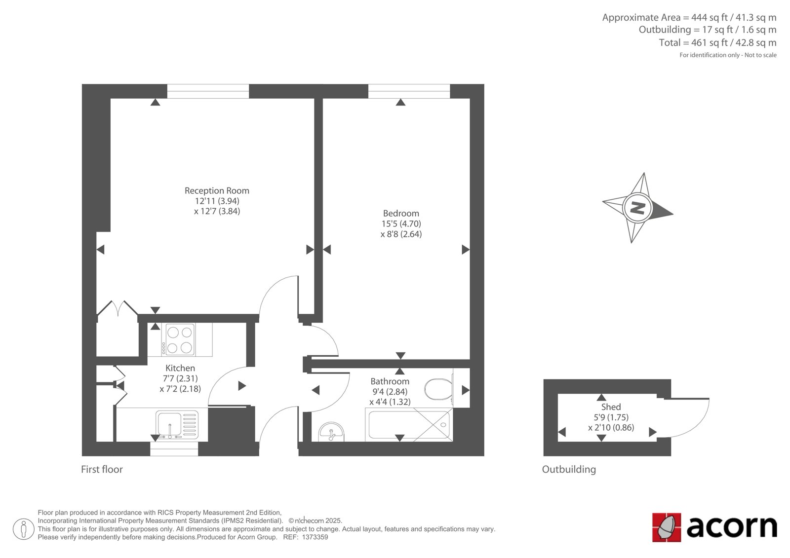
Measuring at 461 sqft, this well-proportioned property comprises a large double bedroom, expansive living space with impressive décor, modern kitchen, and a contemporary bathroom with three-piece suite. Further benefits include access to a communal garden, ample storage and a private external shed/bike storage.

Gautrey Road is a quiet, tree-lined street within 5 minutes walk from Queens Road & Nunhead stations. Also conveniently placed for high streets such as Queens Road and Nunhead which boast an array of independent shops, restaurants and bars.

Lease - 125 years from 31st January 2005 (105 years remaining)
Ground Rent - £10 PA
Service Charge - £1,645 PA
Southwalk Council - Council Tax Band - B
Energy Efficiency Rating - D

Talk to James Moss from Acorn (Estate agents in Peckham Rye)

 

Use our calculator to work out potential mortgage repayments and stamp duty costs. Please note, these calculators are for general interest only and must not be relied on. Speak to our Mortgage Scout team for further information and advice. 

Powered by

Total Mortgage

£

Estimated Monthly Mortgage Payment

£

  • Powered by

Peckham Rye Area Guide

Explore the areas we serve – from parks, entertainment and transport links, to shopping, eating and drinking.

Dive into property knowledge

Visit the AcornIntel knowledge-base, our library of articles to help you make sense of all things property, or send your questions to our panel of property experts.

Get your property valued

Looking to sell or let your property? Get a free property valuation from one of our experts.

Top