The Acorn Group is London’s largest multi-brand estate agency. We offer our clients the best brands, with the best people, in the best locations.

 

Close

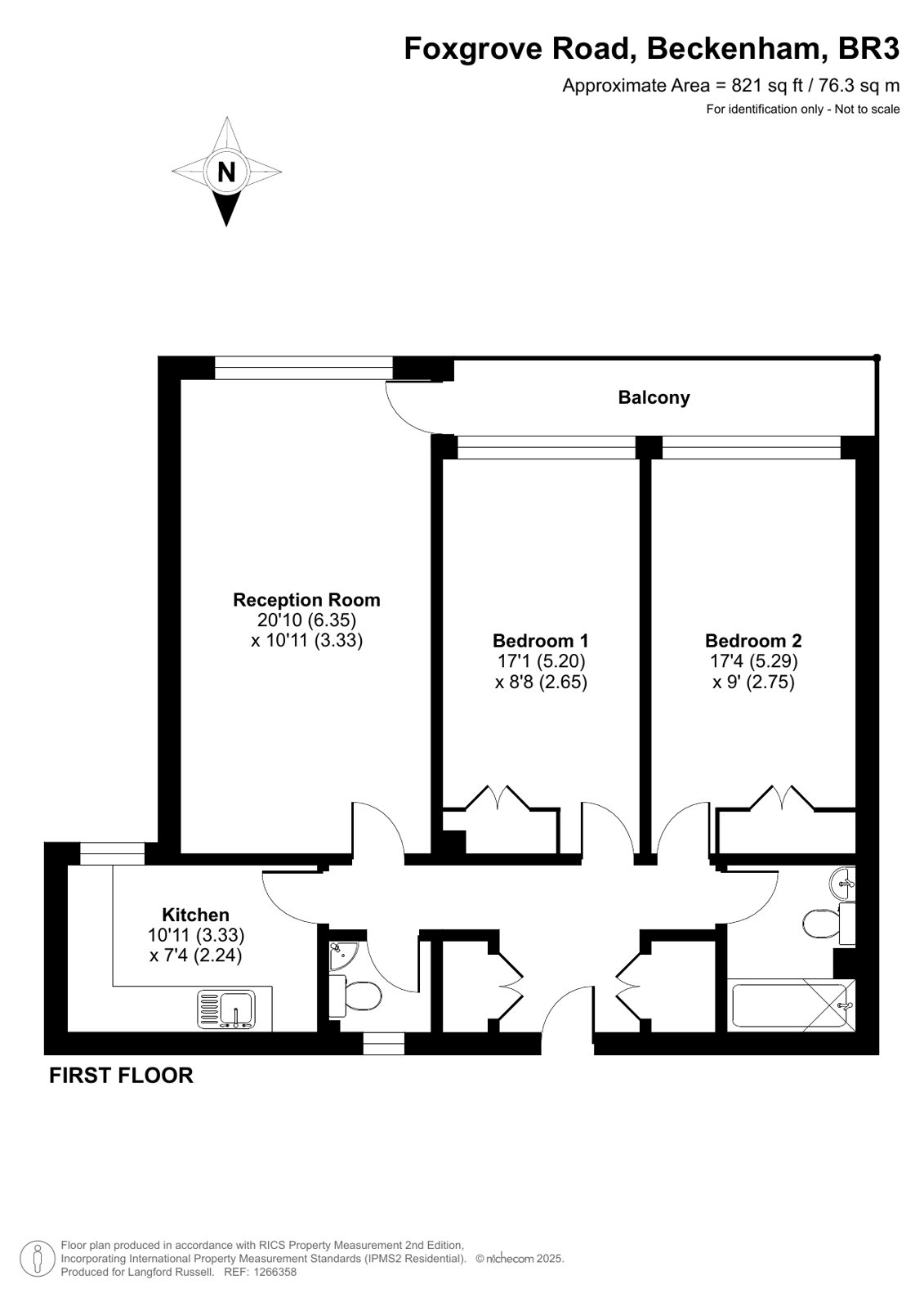
Asking price £425,000 leasehold

Apartment - Foxgrove Road, BR3

Langford Russell are delighted to offer to the market this spacious two bedroom apartment.

Ideally positioned within in a commuter hotspot. Internally, the property comprises of entrance hall with large storage space, bathroom, modern kitchen with appliances, large and airy 20ft lounge/ living area with access to private balcony, and a generously proportioned 17ft double bedroom with fitted walk in wardrobe, there is the bonus of having two bathrooms. Further benefits beautiful communal gardens, garage en-bloc and off-street parking.

The property is ideally located for Beckenham Junction, New Beckenham, and Beckenham Hill Mainline Stations – offering you swift access into a number of different central London stations.

The stunning Beckenham Place Park is on your doorstep, and the charming Beckenham High Street is a ten-minute walk away with its array of independently run coffee shops, bars, and restaurants.

Tenure - Leasehold
Lease Length - 138 Years
Service Charge - £1,800 P/A

London Borough of Bromley - Council Tax Band - D
Energy Efficiency Rating - C

Talk to Eddie Youds from Langford Russell (Estate agents in Beckenham)

 

Use our calculator to work out potential mortgage repayments and stamp duty costs. Please note, these calculators are for general interest only and must not be relied on. Speak to our Mortgage Scout team for further information and advice. 

Powered by

Total Mortgage

£

Estimated Monthly Mortgage Payment

£

  • Powered by

Beckenham Area Guide

Explore the areas we serve – from parks, entertainment and transport links, to shopping, eating and drinking.

Dive into property knowledge

Visit the AcornIntel knowledge-base, our library of articles to help you make sense of all things property, or send your questions to our panel of property experts.

Get your property valued

Looking to sell or let your property? Get a free property valuation from one of our experts.

Top