The Acorn Group is London’s largest multi-brand estate agency. We offer our clients the best brands, with the best people, in the best locations.

 

Close

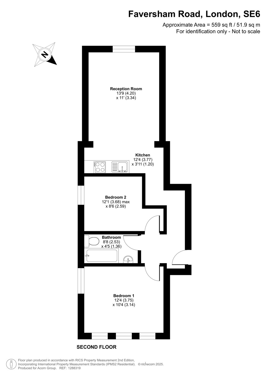
Guide price £285,000 leasehold

Apartment - Faversham Road, SE6

Guide Price £285,000 to £300,000

Acorn are thrilled to welcome to the market this bright and airy top floor flat, located on the SE6/23 borders.

Offered to the market chain free, the accommodation comprises tiled bathroom, two well proportioned double bedrooms, and a spacious open plan kitchen lounge area enjoying elevated views over the local area.

Within walking distance of a plethora of transport links and local amenities, the flat represents an ideal first time purchase.

Leasehold: 95 years | Ground Rent: £360pa | Service Charge: £2027pa | Council Tax: B | EPC Rating: D

Talk to Jake Blackman from Acorn (Estate agents in Catford)

 

Use our calculator to work out potential mortgage repayments and stamp duty costs. Please note, these calculators are for general interest only and must not be relied on. Speak to our Mortgage Scout team for further information and advice. 

Powered by

Total Mortgage

£

Estimated Monthly Mortgage Payment

£

  • Powered by

Catford Area Guide

Explore the areas we serve – from parks, entertainment and transport links, to shopping, eating and drinking.

Dive into property knowledge

Visit the AcornIntel knowledge-base, our library of articles to help you make sense of all things property, or send your questions to our panel of property experts.

Get your property valued

Looking to sell or let your property? Get a free property valuation from one of our experts.

Top