The Acorn Group is London’s largest multi-brand estate agency. We offer our clients the best brands, with the best people, in the best locations.

 

Close

Asking price £400,000 leasehold

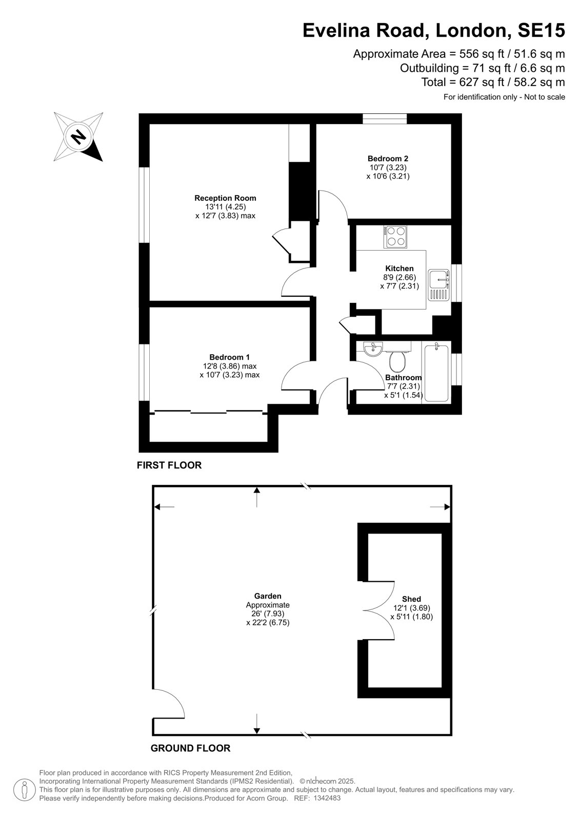
Apartment - Evelina Road, SE15

This beautifully finished two-bedroom apartment, just moments from Nunhead station, has been thoughtfully designed throughout with a brand-new kitchen and bathroom. Offering a private garden and presented to an exceptional standard, the property combines style, comfort, and convenience in equal measure. With great transport links and a prime location, this is simply a wonderful home ready to move straight into.

Leasehold: 111 Years
Service Charge: £1,700 PA
Ground Ground: £10 PA

Talk to James Moss from Acorn (Estate agents in Peckham Rye)

 

Use our calculator to work out potential mortgage repayments and stamp duty costs. Please note, these calculators are for general interest only and must not be relied on. Speak to our Mortgage Scout team for further information and advice. 

Powered by

Total Mortgage

£

Estimated Monthly Mortgage Payment

£

  • Powered by

Peckham Rye Area Guide

Explore the areas we serve – from parks, entertainment and transport links, to shopping, eating and drinking.

Dive into property knowledge

Visit the AcornIntel knowledge-base, our library of articles to help you make sense of all things property, or send your questions to our panel of property experts.

Get your property valued

Looking to sell or let your property? Get a free property valuation from one of our experts.

Top