The Acorn Group is London’s largest multi-brand estate agency. We offer our clients the best brands, with the best people, in the best locations.

 

Close

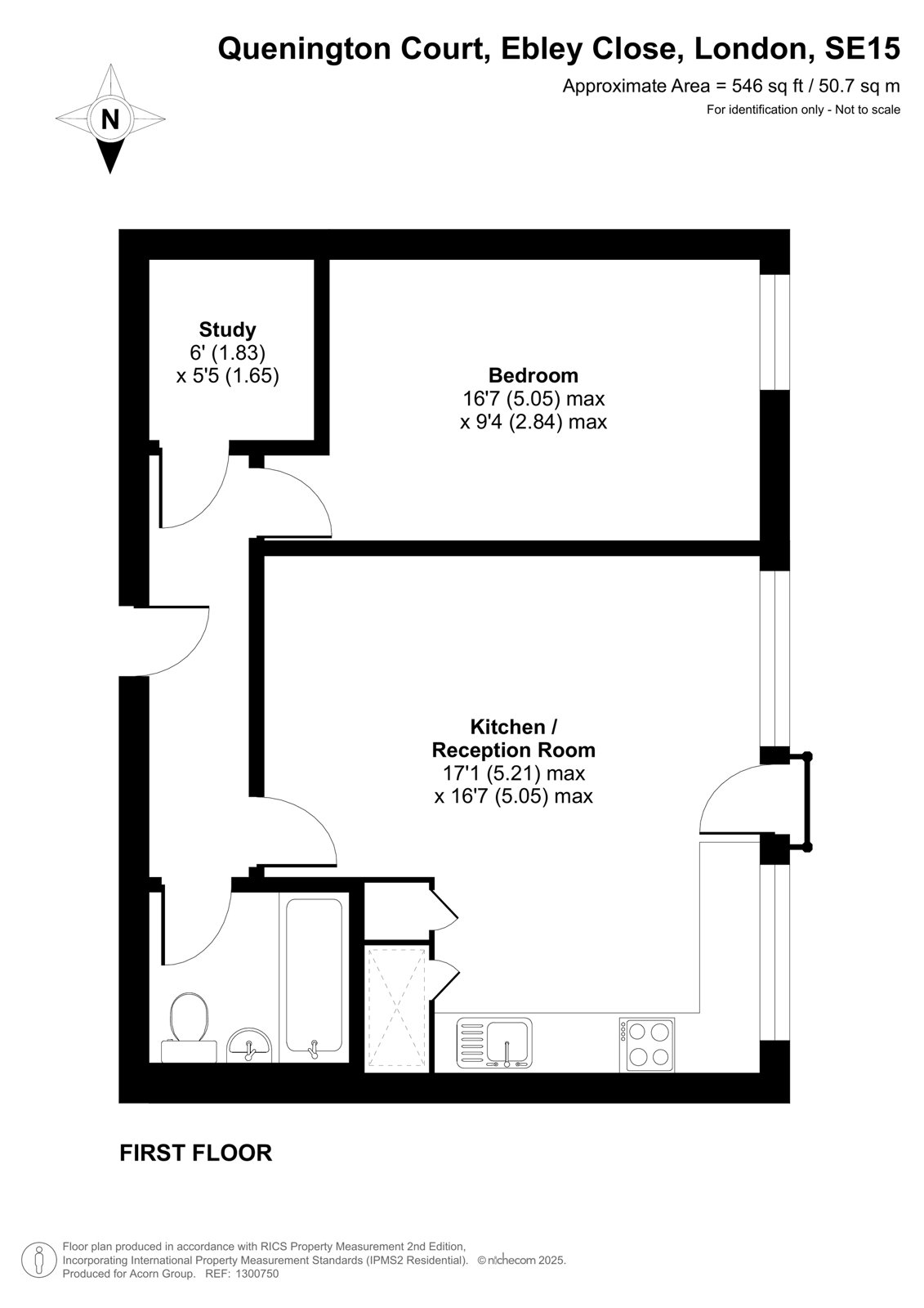
Guide price £225,000 leasehold

Apartment - Ebley Close, SE15

Guide Price: £225,000 to £250,000

Situated on the first floor, this charming one-bedroom flat offers 546 square feet of well-designed living space filled with natural light. The property features a stylish Juliet balcony, adding a touch of elegance and enhancing the bright, airy feel throughout. Offered chain free, it presents a fantastic opportunity for first-time buyers or investors.

Ideally located close to the green open spaces of Burgess Park, this home enjoys excellent access to local amenities and transport links, making it a desirable choice for those seeking comfort and convenience in a vibrant neighbourhood.

Leasehold: 106 Years
Service Charge: £4326.92 PA
Ground Rent: £10 PA

Talk to James Moss from Acorn (Estate agents in Peckham Rye)

 

Use our calculator to work out potential mortgage repayments and stamp duty costs. Please note, these calculators are for general interest only and must not be relied on. Speak to our Mortgage Scout team for further information and advice. 

Powered by

Total Mortgage

£

Estimated Monthly Mortgage Payment

£

  • Powered by

Peckham Rye Area Guide

Explore the areas we serve – from parks, entertainment and transport links, to shopping, eating and drinking.

Dive into property knowledge

Visit the AcornIntel knowledge-base, our library of articles to help you make sense of all things property, or send your questions to our panel of property experts.

Get your property valued

Looking to sell or let your property? Get a free property valuation from one of our experts.

Top