The Acorn Group is London’s largest multi-brand estate agency. We offer our clients the best brands, with the best people, in the best locations.

 

Close

OIEO £500,000 shareOfFreehold

Apartment - Dartmouth Court, LONDON, SE10

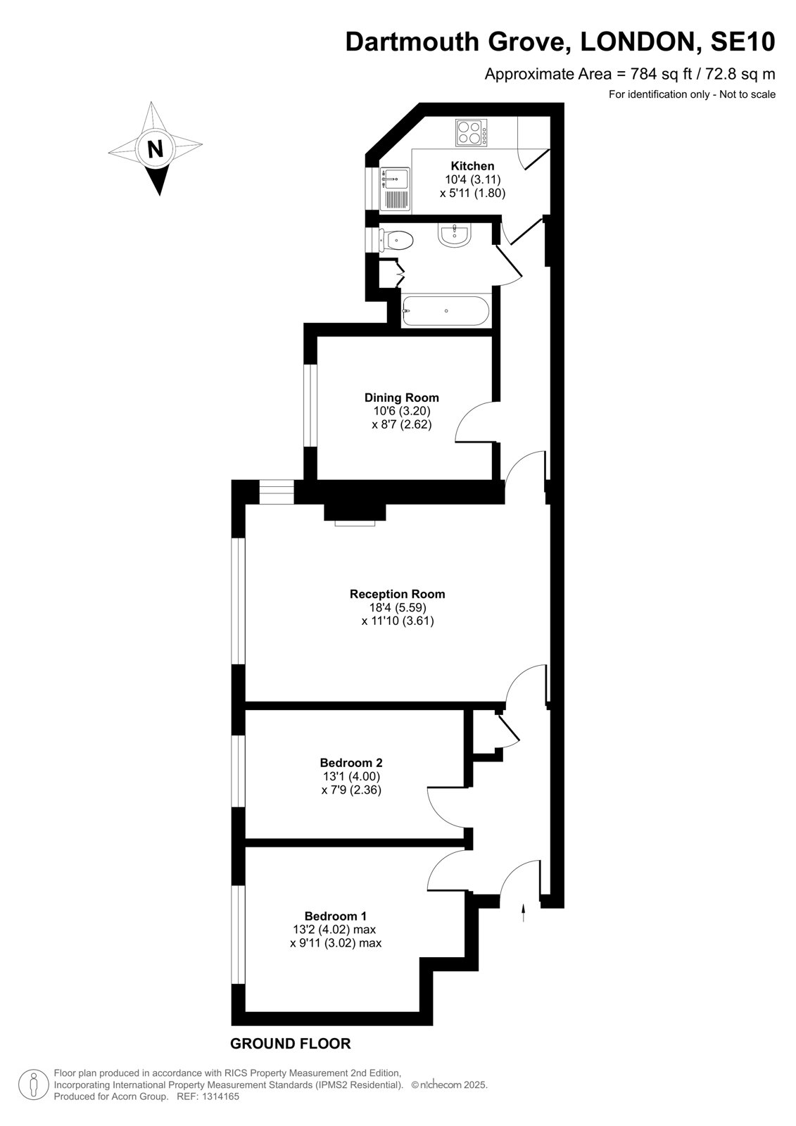
A brilliantly spacious three bedroom ground floor apartment in an attractive 1930's landmark mansion block situated on the edge of the Heath and within easy access to Lewisham DLR, Greenwich town centre and Blackheath Village.

This impressive development completed a huge restoration programme in 2020 which included the full refurbishment and redecoration of all communal hallways including the installation of security entry phone systems. The exterior of the building has also been completely renovated to a very high specification. All the cabling has been completed for Hyperoptic (desirable super fast broadband). In our view, this handsome block is finally back to its former glory.

Internally the property is in excellent decorative order and benefits from a modern fitted kitchen, three generous bedrooms, a bright and airy reception, contemporary bathroom, solid wood floors, double glazing and excellent storage throughout.

Located within walking distance to Blackheath, Lewisham and Greenwich stations offering direct links into central London and the many wonderful amenities this desirable area has to offer.

TENURE: Leasehold (Share of Freehold)
Term - 950 years
Service Charge - £2,900 PA
London Borough of Lewisham - Council Tax Band - D
Energy Efficiency Rating - C

Talk to Richard O'Toole from John Payne (Estate agents in Blackheath)

 

Use our calculator to work out potential mortgage repayments and stamp duty costs. Please note, these calculators are for general interest only and must not be relied on. Speak to our Mortgage Scout team for further information and advice. 

Powered by

Total Mortgage

£

Estimated Monthly Mortgage Payment

£

  • Powered by

Blackheath Area Guide

Explore the areas we serve – from parks, entertainment and transport links, to shopping, eating and drinking.

Dive into property knowledge

Visit the AcornIntel knowledge-base, our library of articles to help you make sense of all things property, or send your questions to our panel of property experts.

Get your property valued

Looking to sell or let your property? Get a free property valuation from one of our experts.

Top