The Acorn Group is London’s largest multi-brand estate agency. We offer our clients the best brands, with the best people, in the best locations.

 

Close

Guide price £475,000 shareOfFreehold

Apartment - Champion Road, SE26

Guide Price: £475,000 to £500,000

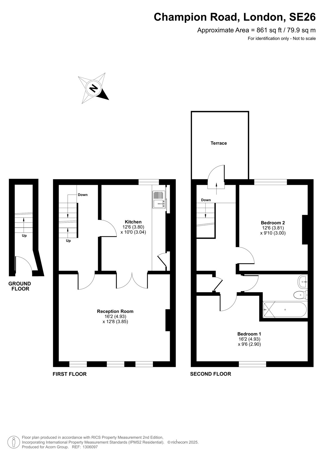
Acorn are pleased to present this beautifully presented split-level property. Offering a harmonious blend of style, comfort, and practicality, set within a highly sought-after location. Measuring an impressive 861 square feet, the home is thoughtfully laid out across two floors and boasts a tastefully designed interior throughout.

Upon entering the property, you are welcomed into a well-appointed first floor featuring a modern kitchen and a bright, airy reception room. The layout has been carefully considered to provide a natural flow between cooking, dining, and relaxing spaces, creating an inviting atmosphere ideal for both everyday living and entertaining guests.

Upstairs, the second floor hosts two generous bedrooms, each offering ample natural light and a sense of calm, making them perfect retreats at the end of the day. The rooms are well-proportioned and thoughtfully finished, reflecting the same attention to detail seen throughout the rest of the home. One of the standout features of this property is the spacious private terraced garden, a rare and desirable asset that provides an ideal setting for al fresco dining, gardening, or simply enjoying a peaceful moment outdoors. Whether used for entertaining or personal relaxation, this outdoor space significantly enhances the property’s appeal.

Adding further value, the home comes with a share of freehold, offering greater control and long-term peace of mind. Off-street parking is also included, ensuring convenience and ease for residents and their guests.

The location is unbeatable – a quiet, yet vibrant area within walking distance of Sydenham High Street, with a variety of shops, cafes, and amenities. Furthermore, the excellent public transport links nearby provide quick and easy access to central London, making this home an ideal choice for commuters.

Talk to Harrison White from Acorn (Estate agents in Sydenham)

 

Use our calculator to work out potential mortgage repayments and stamp duty costs. Please note, these calculators are for general interest only and must not be relied on. Speak to our Mortgage Scout team for further information and advice. 

Powered by

Total Mortgage

£

Estimated Monthly Mortgage Payment

£

  • Powered by

Sydenham Area Guide

Explore the areas we serve – from parks, entertainment and transport links, to shopping, eating and drinking.

Dive into property knowledge

Visit the AcornIntel knowledge-base, our library of articles to help you make sense of all things property, or send your questions to our panel of property experts.

Get your property valued

Looking to sell or let your property? Get a free property valuation from one of our experts.

Top