The Acorn Group is London’s largest multi-brand estate agency. We offer our clients the best brands, with the best people, in the best locations.

 

Close

Guide price £450,000 leasehold

Apartment for sale - Borland Road, SE15

Guide Price: £450,000 - £475,000

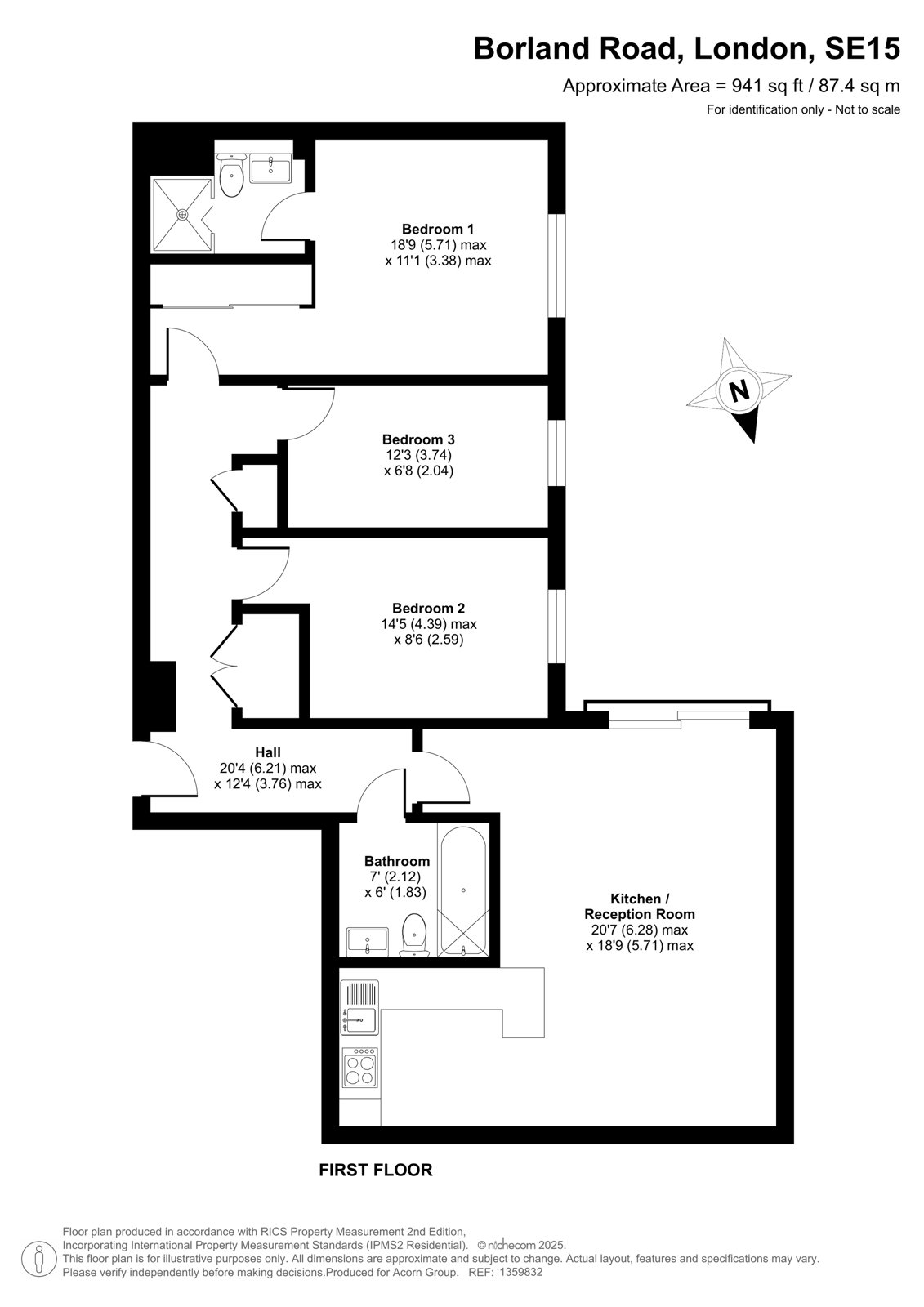
Offered to the market is this beautifully presented, large three-bedroom apartment set within a contemporary development in the ever-popular area of Nunhead, SE15. Boasting generous proportions, modern finishes, and a sought-after open-plan layout, this property offers an exceptional living space ideal for professionals, young families, or investors alike.

The apartment comprises a bright and expansive open-plan kitchen/living area, perfect for both entertaining and everyday living. The sleek, fully integrated kitchen features high-spec appliances, ample storage, and stylish worktops, seamlessly flowing into the spacious lounge and dining area bathed in natural light from large windows.

Three well-sized bedrooms offer comfortable accommodation, with the principal bedroom benefitting from en suite bathroom. A contemporary family bathroom completes the home, fitted with modern fixtures and a clean, minimalist design.

Additional benefits include ample storage throughout, secure entry system, and lift access. The property is part of a well-maintained, modern block with a strong sense of community.

Perfectly located just moments from Nunhead station and within easy reach of Peckham Rye and Queens Road Peckham, this apartment enjoys fantastic transport links into Central London. Local amenities, independent shops, cafes, and green spaces such as Peckham Rye Park and Telegraph Hill are all within walking distance.

Talk to James Moss from Acorn (Estate agents in Peckham Rye)

 

Use our calculator to work out potential mortgage repayments and stamp duty costs. Please note, these calculators are for general interest only and must not be relied on. Speak to our Mortgage Scout team for further information and advice. 

Powered by

Total Mortgage

£

Estimated Monthly Mortgage Payment

£

  • Powered by

Peckham Rye Area Guide

Explore the areas we serve – from parks, entertainment and transport links, to shopping, eating and drinking.

Dive into property knowledge

Visit the AcornIntel knowledge-base, our library of articles to help you make sense of all things property, or send your questions to our panel of property experts.

Get your property valued

Looking to sell or let your property? Get a free property valuation from one of our experts.

Top