The Acorn Group is London’s largest multi-brand estate agency. We offer our clients the best brands, with the best people, in the best locations.

 

Close

Guide price £425,000 leasehold

Apartment for sale - Bonfield Road, SE13

Guide Price £425,000-£450,000

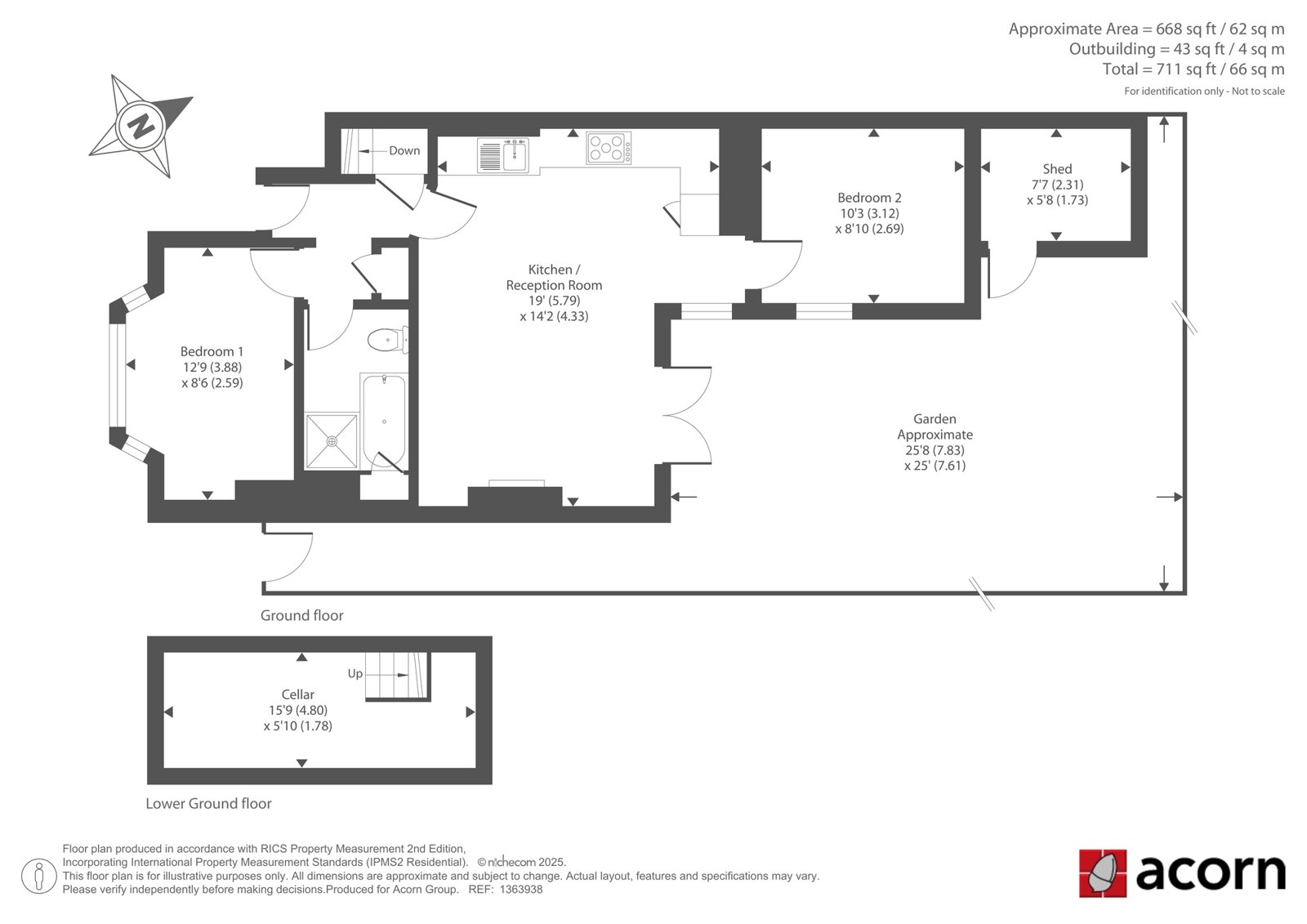
Acorn are pleased to welcome to the market this stylish two-bedroom ground floor flat packed with modern period charm and modern finishes, set on a sought-after street a short stroll from Lewisham High Street.

Step inside to find a thoughtfully designed hallway with built-in storage and access to a large, secure cellar ideal for bikes, tools or extra belongings. The open-plan kitchen/living space is bright and welcoming, featuring an exposed brick-style wall, original-style fireplace, and plenty of room for dining and relaxing. The kitchen comes fully equipped with integrated appliances including a dishwasher, wine fridge, washing machine, and full-size fridge freezer. French doors open out to a generous private garden, beautifully landscaped with a patio, low-maintenance lawn, and space for outdoor seating, dining, or entertaining. A side return and shed add valuable storage. Both bedrooms are well-proportioned, with the main bedroom overlooking the garden for a quiet,peaceful feel. The second room is ideal as a home office, guest room or nursery and finally the apartment is complete with the bathroom that smartly finished with a four-piece suite bath, separate walk-in shower, WC and basin along with extra storage space.

Lewisham Shopping centre is around the corner and offers a range of boutique shops, branded stores, cafes, coffee shops and loads of restaurants to enjoy and a cinema due to open soon! Lewisham Railway & DLR is only 0.4m walk which offers plenty of choice into the city. Manor house gardens is also a lovely local park which features a walled flower garden, ornamental pond, icehouse, cafeteria, children's playground and tennis courts/multi-purpose sports pitches. Blackheath Village is just over a mile away and another sought after location which offers a variety of bars, restaurants, shops and the famous Blackheath & Greenwich park to explore.

Leasehold: 116 years (189 years from 24 December 1986) |Service Charge: Ranges PA £1,200 - £1,600 |Council Tax Band: B|

Talk to Jake Blackman from Acorn (Estate agents in Lewisham)

 

Use our calculator to work out potential mortgage repayments and stamp duty costs. Please note, these calculators are for general interest only and must not be relied on. Speak to our Mortgage Scout team for further information and advice. 

Powered by

Total Mortgage

£

Estimated Monthly Mortgage Payment

£

  • Powered by

Lewisham Area Guide

Explore the areas we serve – from parks, entertainment and transport links, to shopping, eating and drinking.

Dive into property knowledge

Visit the AcornIntel knowledge-base, our library of articles to help you make sense of all things property, or send your questions to our panel of property experts.

Get your property valued

Looking to sell or let your property? Get a free property valuation from one of our experts.

Top