The Acorn Group is London’s largest multi-brand estate agency. We offer our clients the best brands, with the best people, in the best locations.

 

Close

Guide price £285,000 leasehold

Apartment for sale - Barmeston Road, SE6

Guide Price £285,000 - £300,000

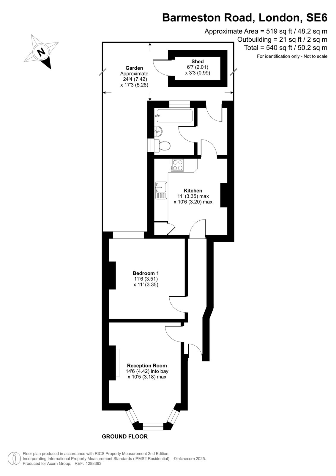
Acorn are delighted to welcome to the market this bright and airy ground floor Victorian Conversion Garden flat.

Offered to the market with no onward chain, the property boasts off street parking and a South facing garden.

Internally the accommodation comprises large front lounge with bay window, well proportioned double bedroom, kitchen diner with ample fitted units, and bathroom.

Enviably located, the flat is within walking distance of both Bellingham and Catford Rail Stations, as well as a plethora of local amenities and green spaces.

Lease Length: 98 Years
Annual Service Charge: £600
Council Tax Band: B
Energy Efficiency Rating: D

Talk to Jake Blackman from Acorn (Estate agents in Catford)

 

Use our calculator to work out potential mortgage repayments and stamp duty costs. Please note, these calculators are for general interest only and must not be relied on. Speak to our Mortgage Scout team for further information and advice. 

Powered by

Total Mortgage

£

Estimated Monthly Mortgage Payment

£

  • Powered by

Catford Area Guide

Explore the areas we serve – from parks, entertainment and transport links, to shopping, eating and drinking.

Dive into property knowledge

Visit the AcornIntel knowledge-base, our library of articles to help you make sense of all things property, or send your questions to our panel of property experts.

Get your property valued

Looking to sell or let your property? Get a free property valuation from one of our experts.

Top