The Acorn Group is London’s largest multi-brand estate agency. We offer our clients the best brands, with the best people, in the best locations.

 

Close

Guide price £325,000 shareOfFreehold

Apartment for sale - Balloch Road, SE6

Guide Price: £325,000 to £340,000

Acorn are delighted to welcome to the market this spacious Period Garden flat, offered to the market with no onward chain.

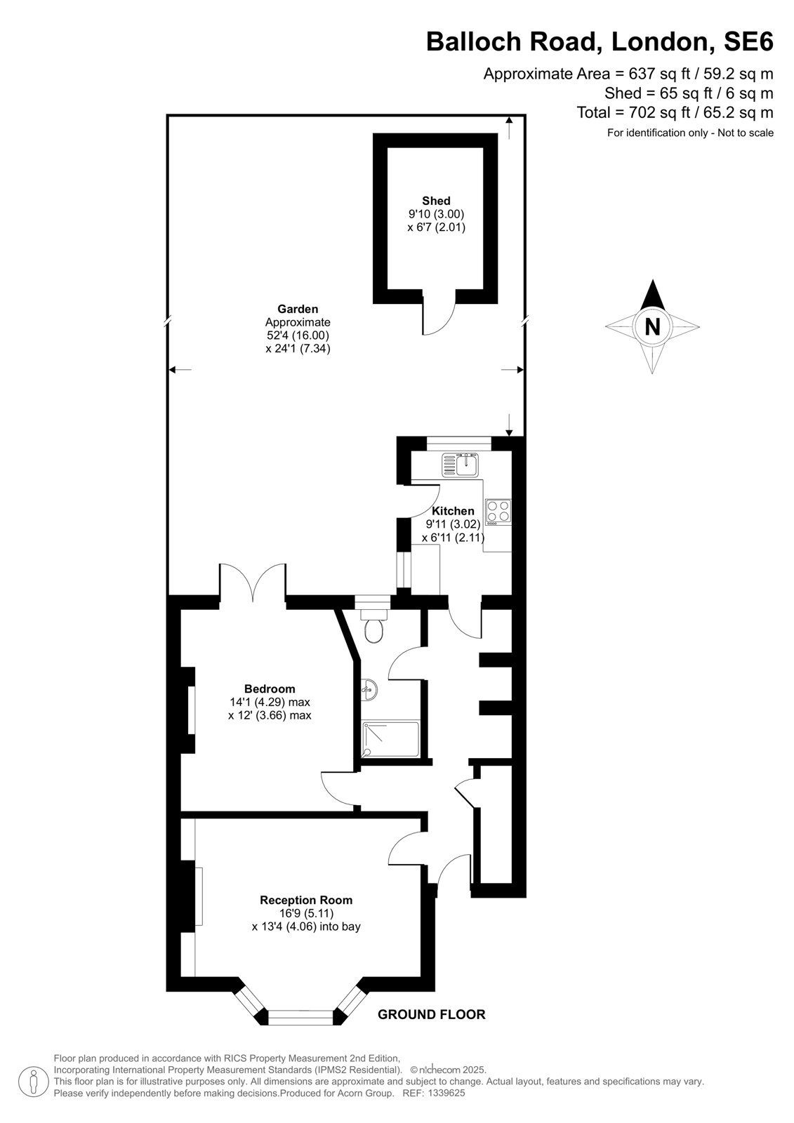
Boasting a Share of the Freehold, the property comprises large front lounge with bay window and feature fire place, spacious double bedroom with double doors leading onto the garden, shower room, and fitted kitchen with ample units and door to the garden. The private garden measures just over 50ft and offers both lawn and patio areas.

Located within the ever sought after Corbett Estate, the flat is within easy reach of ample transport links and amenities, making for an ideal first time purchase.

Talk to Jake Blackman from Acorn (Estate agents in Catford)

 

Use our calculator to work out potential mortgage repayments and stamp duty costs. Please note, these calculators are for general interest only and must not be relied on. Speak to our Mortgage Scout team for further information and advice. 

Powered by

Total Mortgage

£

Estimated Monthly Mortgage Payment

£

  • Powered by

Catford Area Guide

Explore the areas we serve – from parks, entertainment and transport links, to shopping, eating and drinking.

Dive into property knowledge

Visit the AcornIntel knowledge-base, our library of articles to help you make sense of all things property, or send your questions to our panel of property experts.

Get your property valued

Looking to sell or let your property? Get a free property valuation from one of our experts.

Top