The Acorn Group is London’s largest multi-brand estate agency. We offer our clients the best brands, with the best people, in the best locations.

 

Close

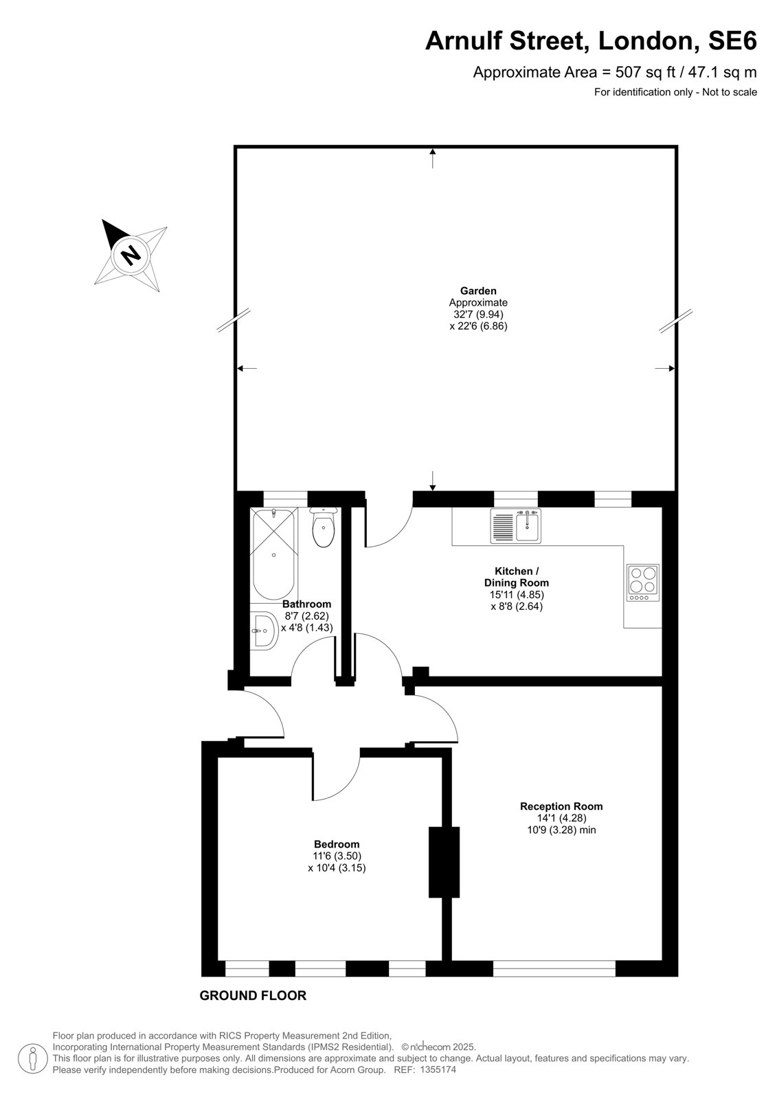
Asking price £225,000 leasehold

Apartment for sale - Arnulf Street, SE6

PUBLIC NOTICE
DATE OF NOTICE: 03 / 10 / 2025
50 Arnulf Street (GFF), Lewisham, London, SE6 3EQ
We advise that an offer has been made for the above property in the sum of £220,000.00
Any persons wishing to increase on this offer should notify the agents of their best offer prior to exchange of contracts.
Acorn Estate Agents
128 Rushley Green, London, SE6 4QH
Tel: 0208 333 4488

Acorn are delighted to welcome to the market this ground floor flat, located well transport links and local amenities.

Offered to the market chain free, the property comprises tiled bathroom, large double bedroom, spacious lounge and fitted kitchen diner with ample units.

The property further boasts long lease with 103 years remaining and a large private garden.

Lease Length: 103 Years Remaining
Service Charge: TBC
Ground Rent: TBC
Council Tax Band: B
Energy Efficiency Rating: C

Talk to Jake Blackman from Acorn (Estate agents in Catford)

 

Use our calculator to work out potential mortgage repayments and stamp duty costs. Please note, these calculators are for general interest only and must not be relied on. Speak to our Mortgage Scout team for further information and advice. 

Powered by

Total Mortgage

£

Estimated Monthly Mortgage Payment

£

  • Powered by

Catford Area Guide

Explore the areas we serve – from parks, entertainment and transport links, to shopping, eating and drinking.

Dive into property knowledge

Visit the AcornIntel knowledge-base, our library of articles to help you make sense of all things property, or send your questions to our panel of property experts.

Get your property valued

Looking to sell or let your property? Get a free property valuation from one of our experts.

Top