The Acorn Group is London’s largest multi-brand estate agency. We offer our clients the best brands, with the best people, in the best locations.

 

Close

£1,850 per month

Flat to rent - Kennington Road, London, SE11

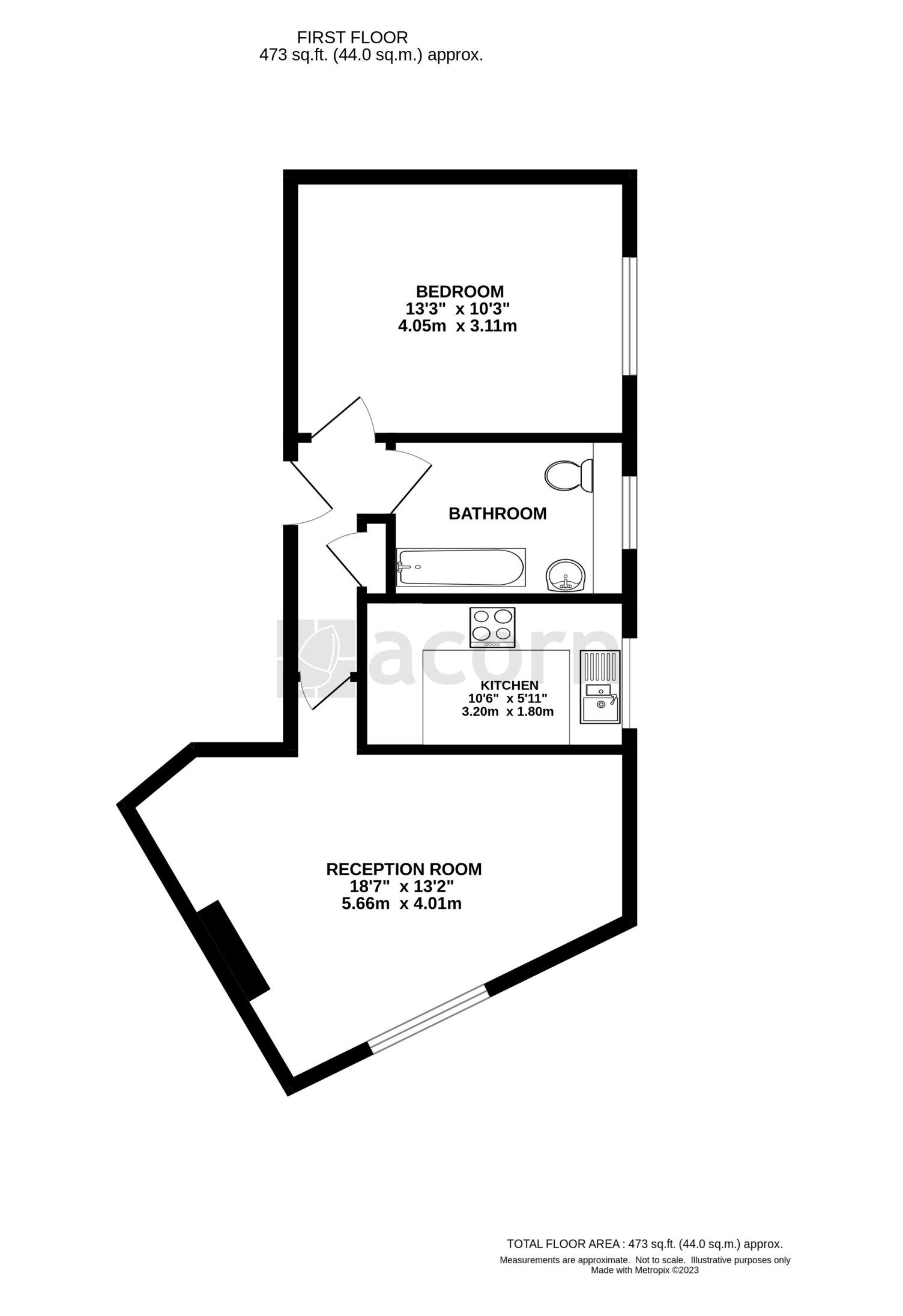
Compromising one large double bedroom, reception room, fully fitted kitchen, and a large bathroom this flat is ideal for professionals needing a quick commute to work.

Kenneth Court is located to one side of Kennington Road and corners Wincott Street. Midway between Kennington Cross and the Imperial War Museum, Kenneth Court is well located for local shops and restaurants and Parliament Square is just a short walk away.

Both Lambeth North Underground Station (Bakerloo Line) and Kennington Underground Stations (Northern Line – both branches) are both just a short walk away (approximately 0.6 miles), offering easy access into Central London. Buses frequently run along Kennington Road and Santander bikes are available close by.

The property is available 1st December 2025

EPC Rating: C
Council Tax Band: C

Gas Central Heating
Mains Electric
Mains Water
All known suppliers for mobile and broadband services are available in this area
Very Low Flood Risk
Reception 18'7 x 13'2, Bedroom 13'3 x 10'3, Kitchen 10'6 x 5'11 To check broadband and mobile phone coverage please visit Ofcom here ofcom.org.uk/phones-telecoms-and-internet/advice-for-consumers/advice/ofcom-checker

Talk to Jack Davies from Acorn (Estate agents in Kennington)

Kennington Area Guide

Explore the areas we serve – from parks, entertainment and transport links, to shopping, eating and drinking.

Dive into property knowledge

Visit the AcornIntel knowledge-base, our library of articles to help you make sense of all things property, or send your questions to our panel of property experts.

Get your property valued

Looking to sell or let your property? Get a free property valuation from one of our experts.

Top