The Acorn Group is London’s largest multi-brand estate agency. We offer our clients the best brands, with the best people, in the best locations.

 

Close

£2,900 per month

End Of Terrace House to rent - Manor Lane, Hither Green, SE13

Available to let immediately, this property is offered unfurnished.

Located in an extremely popular road within a few minutes of Hither Green train station (10 minutes to London Bridge), several Ofsted rated ‘outstanding’ schools, local shops and the family friendly Manor House Gardens. Blackheath Village is within a mile distance and offers a variety of restaurants, bars, cafes and boutique shops.

To fully appreciate this home, we would highly recommend an internal viewing as soon as possible.

Not suitable for Sharers/ HMO

London Borough of Lewisham - Council Tax Band - D
Energy Efficiency Rating - D

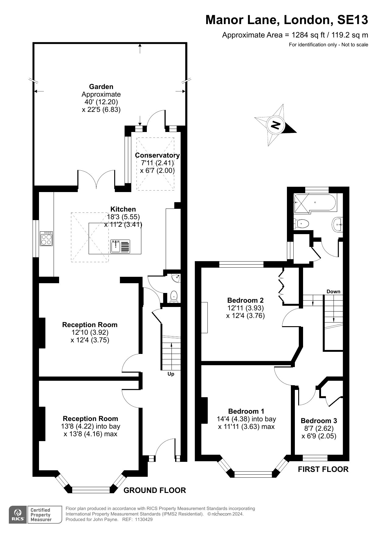
Reception Room 4.22m x 4.16m (13'8" x 13'8") Reception Room 3.92m x 3.75m (12'10" x 12'4") Kitchen 5.55m x 3.41m (18'3" x 11'2") Conservatory 2.41m x 2m (7'11" x 6'7") Bedroom One 4.38m x 3.63m (14'4" x 11'11") Bedroom Two 3.93m x 3.76m (12'11" x 12'4") Bedroom Three 2.62m x 2.05m (8'7" x 6'9")

Broadband and Mobile Phone: Ofcom suggest that Ultrafast broadband is available to this property and 5g Mobile signal may be available on some networks. Information regarding broadband options and phone signal can be obtained from the Ofcom broadband and mobile coverage checker. To check broadband and mobile phone coverage please visit Ofcom here ofcom.org.uk/phones-telecoms-and-internet/advice-for-consumers/advice/ofcom-checker

Talk to Chris Wadeson from John Payne (Estate agents in Lee)

hseJoomla\CMS\Menu\MenuItem Object ( [id] => 1176 [menutype] => john-payne-main-menu [title] => Property to Rent [alias] => property-lettings [note] => [route] => johnpayne/property-lettings [link] => index.php?option=com_startek&view=details&search_type=L [type] => component [level] => 2 [language] => * [browserNav] => 0 [access] => 1 [params:protected] => Joomla\Registry\Registry Object ( [data:protected] => stdClass Object ( [layout] => stb:john-payne [prepare_content] => 0 [pathway_option] => startek [menu-anchor_title] => [menu-anchor_css] => [menu_image] => [menu_image_css] => [menu_text] => 1 [menu_show] => 1 [page_title] => [show_page_heading] => 1 [page_heading] => [pageclass_sfx] => [menu-meta_description] => [menu-meta_keywords] => [robots] => [secure] => 0 [canonical] => 227 [mainpage] => [redirect] => ) [initialized:protected] => 1 [separator] => . ) [home] => 0 [img] => [template_style_id] => 13 [component_id] => 10042 [parent_id] => 137 [component] => com_startek [tree] => Array ( [0] => 137 [1] => 1176 ) [query] => Array ( [option] => com_startek [view] => details [search_type] => L ) )

Lee Area Guide

Explore the areas we serve – from parks, entertainment and transport links, to shopping, eating and drinking.

Dive into property knowledge

Visit the AcornIntel knowledge-base, our library of articles to help you make sense of all things property, or send your questions to our panel of property experts.

hseJoomla\CMS\Menu\MenuItem Object ( [id] => 1176 [menutype] => john-payne-main-menu [title] => Property to Rent [alias] => property-lettings [note] => [route] => johnpayne/property-lettings [link] => index.php?option=com_startek&view=details&search_type=L [type] => component [level] => 2 [language] => * [browserNav] => 0 [access] => 1 [params:protected] => Joomla\Registry\Registry Object ( [data:protected] => stdClass Object ( [layout] => stb:john-payne [prepare_content] => 0 [pathway_option] => startek [menu-anchor_title] => [menu-anchor_css] => [menu_image] => [menu_image_css] => [menu_text] => 1 [menu_show] => 1 [page_title] => [show_page_heading] => 1 [page_heading] => [pageclass_sfx] => [menu-meta_description] => [menu-meta_keywords] => [robots] => [secure] => 0 [canonical] => 227 [mainpage] => [redirect] => ) [initialized:protected] => 1 [separator] => . ) [home] => 0 [img] => [template_style_id] => 13 [component_id] => 10042 [parent_id] => 137 [component] => com_startek [tree] => Array ( [0] => 137 [1] => 1176 ) [query] => Array ( [option] => com_startek [view] => details [search_type] => L ) )

Get your property valued

Looking to sell or let your property? Get a free property valuation from one of our experts.

Top