The Acorn Group is London’s largest multi-brand estate agency. We offer our clients the best brands, with the best people, in the best locations.

 

Close

£475,000 OIEO

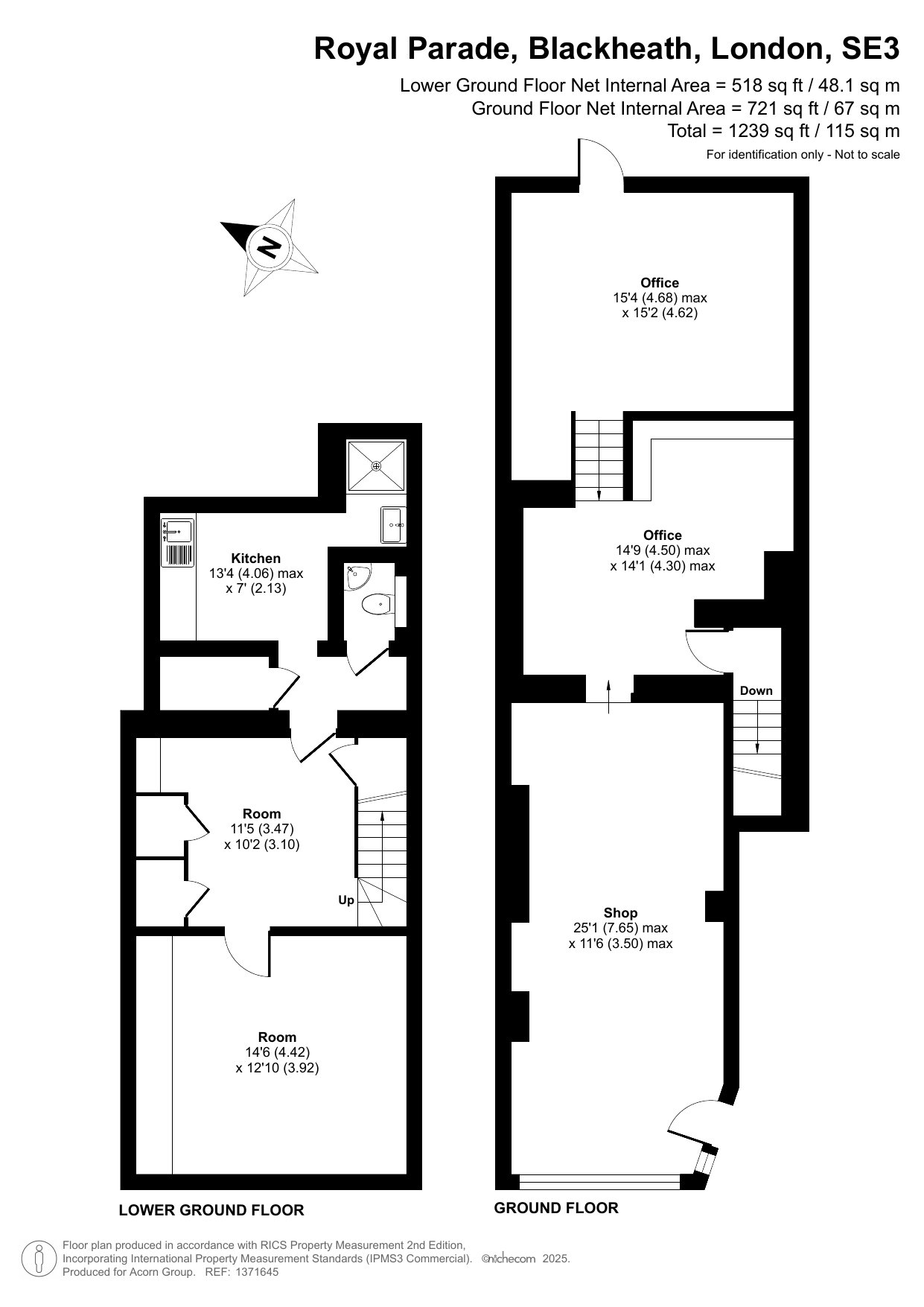
14 Royal Parade, Blackheath, London SE3 Ref: 36927

An opportunity to purchase this turnkey commercial unit as an investment or occupy as an ongoing business, which is in the heart of Blackheath, just across the road from All Saints Church on the heath itself. The unit, previously an art gallery, is sized at c.1,239sqft (c.115sqm) of Internal Floor Space GIA which is set across the ground/basement floors. The unit is also housed within an attractive period building that is presented immaculately, with a split-level maisonette above that is sold off on a long lease to an owner occupier. The unit is certainly going to appeal to a wide variety of operators such as retail businesses, financial/professional services, office etc, or an investor, due to opportunities like this in SE3 being very hard to come by. On the latter, we would anticipate a rent of c.£35,000pa, which would provide a gross annual yield of just below 8%.

Top