A rare opportunity to purchase 4 x railway arches next to Loughborough Junction station in Brixton.
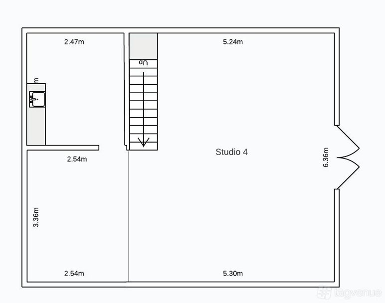
The arches, that are being sold vacant, are accessed from a gated private courtyard leading from Coldharbour Lane. Each arch measures c. 525sqft internally, has secure frontage and has their own electricity/water/drainage supply. The commercial space is considered to have planning use class E meaning they can be used for a variety of commercial uses including office, retail, clinic, café/restaurant, coffee shop, light-industrial and creative space.
The leaseholds of the arches are being sold with 843 years unexpired on each arch and will appeal to both investors and owner operators alike.
Daniel Dennis
[{"featureType":"administrative.land_parcel","elementType":"all","stylers":[{"visibility":"on"}]},{"featureType":"landscape.man_made","elementType":"all","stylers":[{"visibility":"on"}]},{"featureType":"poi","elementType":"labels","stylers":[{"visibility":"on"}]},{"featureType":"road","elementType":"labels","stylers":[{"visibility":"simplified"},{"lightness":20}]},{"featureType":"road.highway","elementType":"geometry","stylers":[{"hue":"#f49935"}]},{"featureType":"road.highway","elementType":"labels","stylers":[{"visibility":"simplified"}]},{"featureType":"road.arterial","elementType":"geometry","stylers":[{"hue":"#fad959"}]},{"featureType":"road.arterial","elementType":"labels","stylers":[{"visibility":"on"}]},{"featureType":"road.local","elementType":"geometry","stylers":[{"visibility":"simplified"}]},{"featureType":"road.local","elementType":"labels","stylers":[{"visibility":"simplified"}]},{"featureType":"transit","elementType":"all","stylers":[{"visibility":"on"}]},{"featureType":"water","elementType":"all","stylers":[{"hue":"#a1cdfc"},{"saturation":30},{"lightness":49}]}]