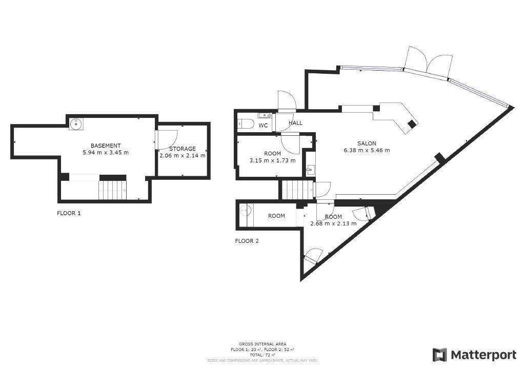
A unique opportunity to acquire this commercial unit in a well-known South London area, South Norwood, which is housed within the ground floor of this period 2-storey building. Internally the unit sits c.72sqm/775sqft of floor space, which is currently occupied by a hair/nail salon, who are holding over on a lease (outside of the act) with only a 3-months' notice required. The commercial tenant is currently paying £10kpa, with the ERV expected to be c.£15k/£16kpa (c.8-8.5% gross yield).
Brendan Kennedy
[{"featureType":"administrative.land_parcel","elementType":"all","stylers":[{"visibility":"on"}]},{"featureType":"landscape.man_made","elementType":"all","stylers":[{"visibility":"on"}]},{"featureType":"poi","elementType":"labels","stylers":[{"visibility":"on"}]},{"featureType":"road","elementType":"labels","stylers":[{"visibility":"simplified"},{"lightness":20}]},{"featureType":"road.highway","elementType":"geometry","stylers":[{"hue":"#f49935"}]},{"featureType":"road.highway","elementType":"labels","stylers":[{"visibility":"simplified"}]},{"featureType":"road.arterial","elementType":"geometry","stylers":[{"hue":"#fad959"}]},{"featureType":"road.arterial","elementType":"labels","stylers":[{"visibility":"on"}]},{"featureType":"road.local","elementType":"geometry","stylers":[{"visibility":"simplified"}]},{"featureType":"road.local","elementType":"labels","stylers":[{"visibility":"simplified"}]},{"featureType":"transit","elementType":"all","stylers":[{"visibility":"on"}]},{"featureType":"water","elementType":"all","stylers":[{"hue":"#a1cdfc"},{"saturation":30},{"lightness":49}]}]