An opportunity to acquire a well-presented, self-contained office located in a cul-de-sac just off Bermondsey Street, directly adjacent to Leathermarket Gardens Park.
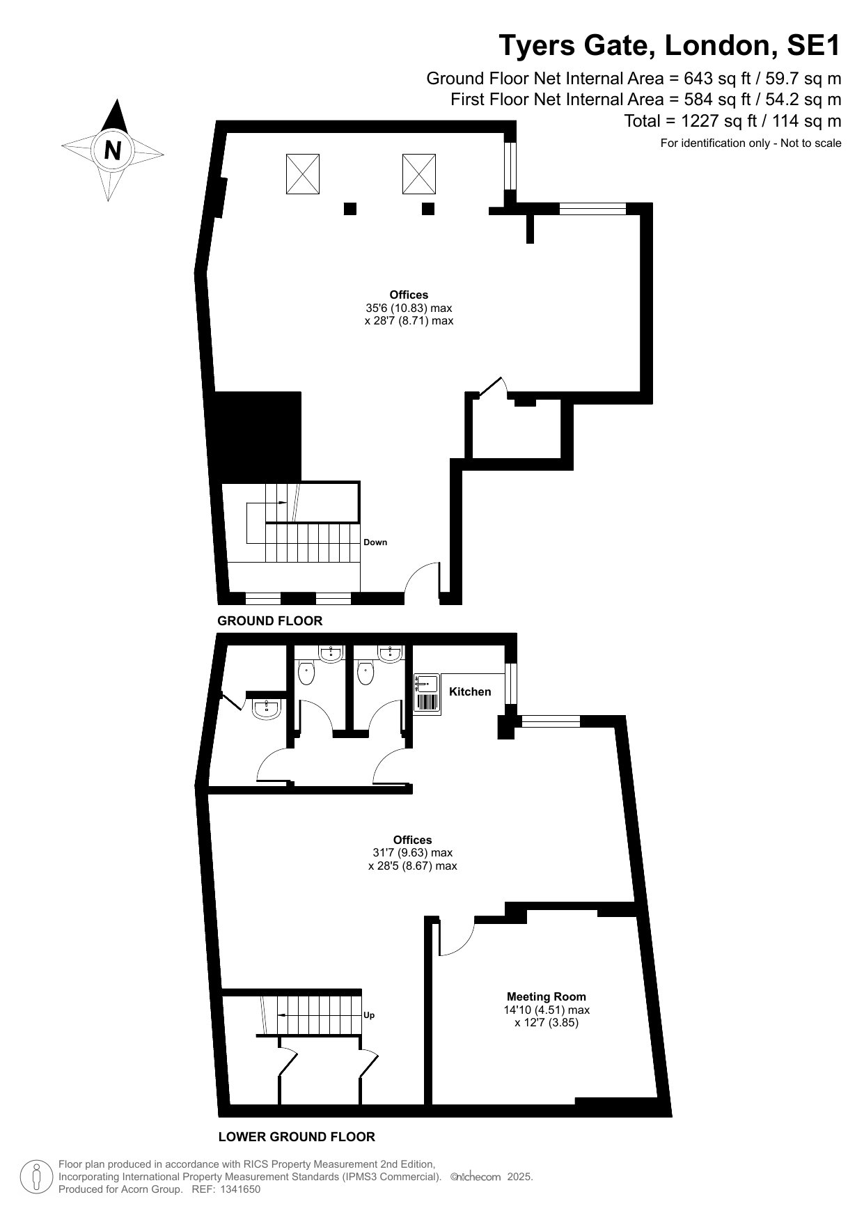
The subject property is positioned over ground and lower ground floor levels of a purpose-built mixed-use block at the end of a small terrace on Tyers Gate and benefits from a largely open plan layout on both floors alongside a private meeting room and typical toilet and kitchenette facilities. The property would suit a variety of different owner-occupier businesses and investors looking to secure an extremely well located commercial unit in the heart of one of SE1's most popular locations which benefits from the wider commercial E use class.
Steven Flannighan
[{"featureType":"administrative.land_parcel","elementType":"all","stylers":[{"visibility":"on"}]},{"featureType":"landscape.man_made","elementType":"all","stylers":[{"visibility":"on"}]},{"featureType":"poi","elementType":"labels","stylers":[{"visibility":"on"}]},{"featureType":"road","elementType":"labels","stylers":[{"visibility":"simplified"},{"lightness":20}]},{"featureType":"road.highway","elementType":"geometry","stylers":[{"hue":"#f49935"}]},{"featureType":"road.highway","elementType":"labels","stylers":[{"visibility":"simplified"}]},{"featureType":"road.arterial","elementType":"geometry","stylers":[{"hue":"#fad959"}]},{"featureType":"road.arterial","elementType":"labels","stylers":[{"visibility":"on"}]},{"featureType":"road.local","elementType":"geometry","stylers":[{"visibility":"simplified"}]},{"featureType":"road.local","elementType":"labels","stylers":[{"visibility":"simplified"}]},{"featureType":"transit","elementType":"all","stylers":[{"visibility":"on"}]},{"featureType":"water","elementType":"all","stylers":[{"hue":"#a1cdfc"},{"saturation":30},{"lightness":49}]}]