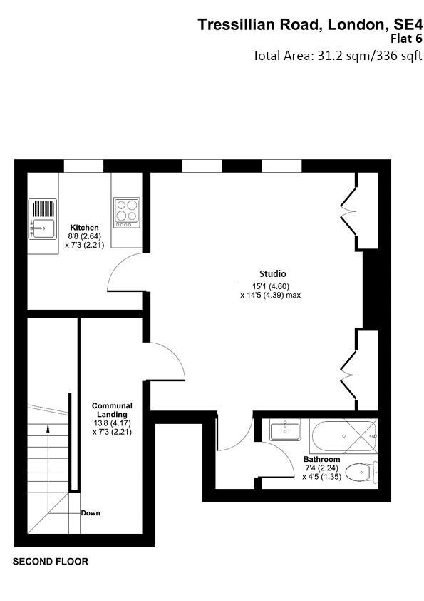
A rare opportunity to purchase a freehold three storey Victorian building arranged as 6 flats within the sought-after Brockley Conservation Area.
The building is currently arranged as 4 studios and 2 x 1 bedroom flats and is producing a rental income of £79,440pa. The property is under let with market rental value being £94,000 - 96,000pa.
The property offers potential to convert back to a house or into a smaller number of large flats, subject to planning. There is also potential to extend at the rear as per similar properties in the road. There is a provision for off-street parking on a first come first serve basis.
The property is within the Brockley Conservation Area, however it is not Listed.
Finn Robertson
Tom Luck
[{"featureType":"administrative.land_parcel","elementType":"all","stylers":[{"visibility":"on"}]},{"featureType":"landscape.man_made","elementType":"all","stylers":[{"visibility":"on"}]},{"featureType":"poi","elementType":"labels","stylers":[{"visibility":"on"}]},{"featureType":"road","elementType":"labels","stylers":[{"visibility":"simplified"},{"lightness":20}]},{"featureType":"road.highway","elementType":"geometry","stylers":[{"hue":"#f49935"}]},{"featureType":"road.highway","elementType":"labels","stylers":[{"visibility":"simplified"}]},{"featureType":"road.arterial","elementType":"geometry","stylers":[{"hue":"#fad959"}]},{"featureType":"road.arterial","elementType":"labels","stylers":[{"visibility":"on"}]},{"featureType":"road.local","elementType":"geometry","stylers":[{"visibility":"simplified"}]},{"featureType":"road.local","elementType":"labels","stylers":[{"visibility":"simplified"}]},{"featureType":"transit","elementType":"all","stylers":[{"visibility":"on"}]},{"featureType":"water","elementType":"all","stylers":[{"hue":"#a1cdfc"},{"saturation":30},{"lightness":49}]}]