The Acorn Group is London’s largest multi-brand estate agency. We offer our clients the best brands, with the best people, in the best locations.

 

Close

£775,000 OIRO

202-204 Eltham High Street, Eltham, London SE9 Ref: 30727

An opportunity for developers to acquire the freehold interest of this prominent commercial building on Eltham High Street.

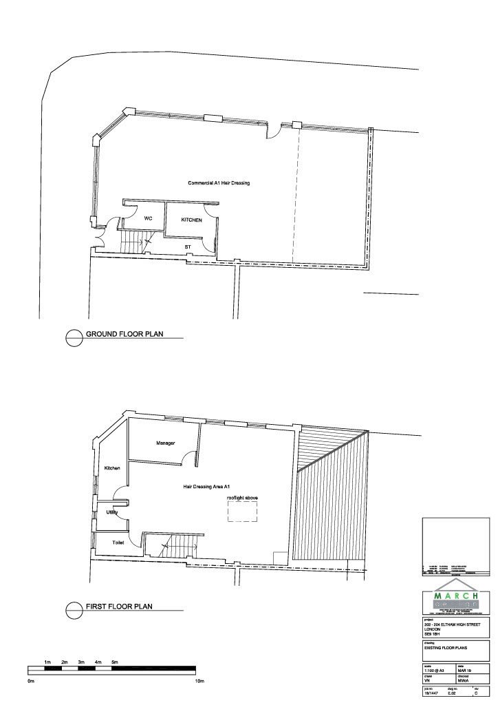
The property is laid out over ground and first floors and benefits from planning permission to add 2 additional floors to create a 4-storey mixed-use building. The proposed scheme would retain commercial space across ground and first floor, with two x 2 bed duplexes over third and fourth floors. The first floor previously benefited from PD to convert into 2x1bed flats and developers might consider re-planning to incorporate this floor into a new scheme which maximises the capacity of the most recent consent (4 storey building). There are two entrances, one off the high street and the other from Pound Place.

The commercial unit would suit a wide variety of occupiers considering the flexible E use class. There is a strong demand from residential accommodation in Eltham both on a sales and rental basis. Typical 1 bed flats will rent for c.£1,500pcm and 2 bed flats for c.£1,800-£1,900pcm.

Aside from the development angle, considering the property measures 2,350 sqft, is freehold and benefits from E use class, the property would appear well suited for owner-occupiers including restaurant operators, professional services and medical practices to name a few.

Top