The Acorn Group is London’s largest multi-brand estate agency. We offer our clients the best brands, with the best people, in the best locations.

 

Close

£60,000 pa

54-56 High Street, West Wickham, Kent BR4 Ref: 34341

The subject property is prominently located on the busy West Wickham High Street and benefits from strong frontage, heavy footfall and passing traffic throughout the day.

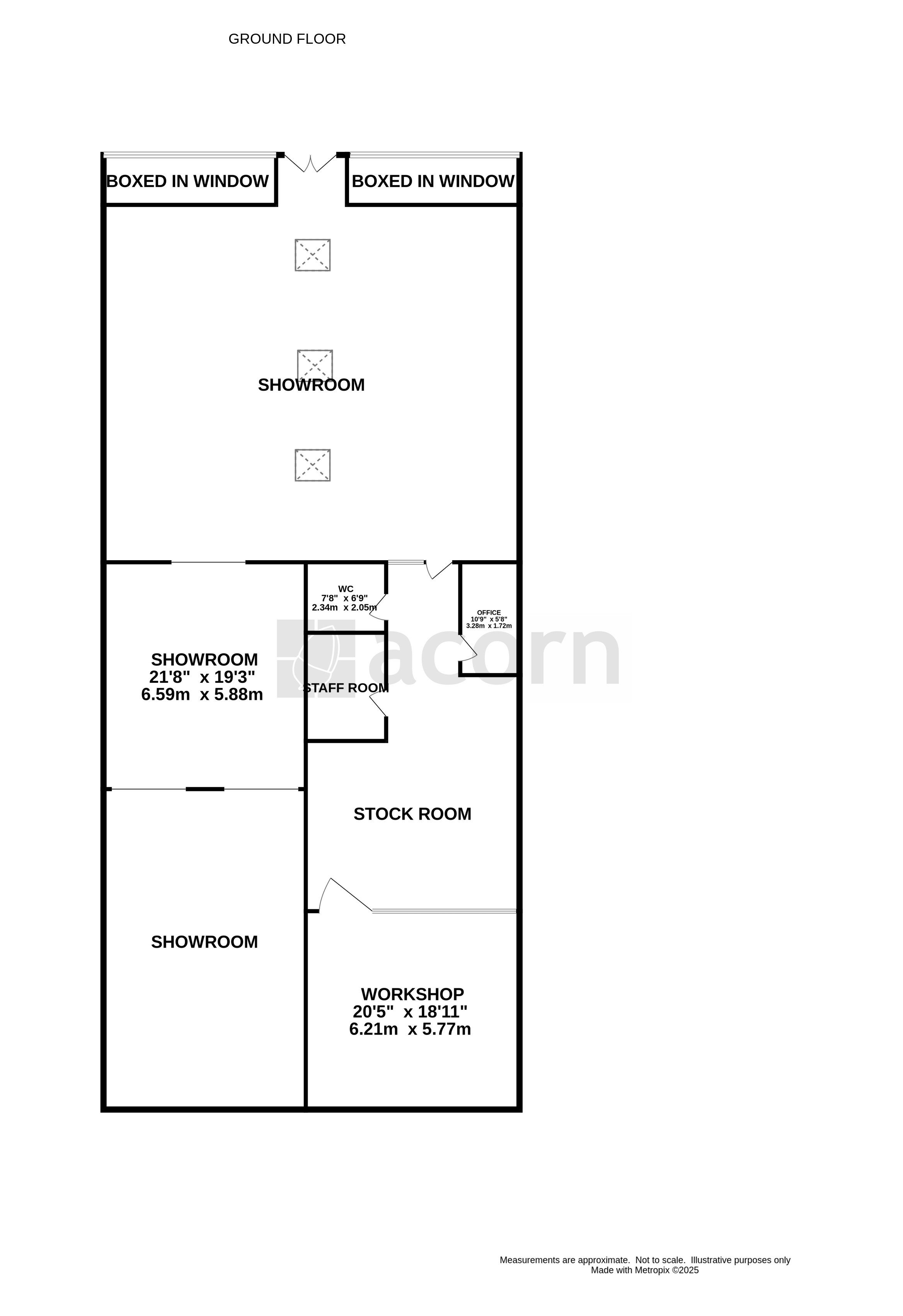
Measuring circa 3,574sqft across one level and currently operated as an interior design showroom, the property is comprised of an open plan front showroom area which stretches to the rear in an L-shape with a small staff room, office, W/C facilities and stock room to the rear. There are boxed in windows at the front of the unit which make great display space for passing foot and vehicle traffic. The unit is in a good condition and benefits from wooden and tiled flooring throughout.

Whilst the property is set up as a showroom, it benefits from planning use class E and as a result would be well suited for a variety of other uses, some of which might include gym operators, retailers, or professional services.

Top