The Acorn Group is London’s largest multi-brand estate agency. We offer our clients the best brands, with the best people, in the best locations.

 

Close

£75,000 pa

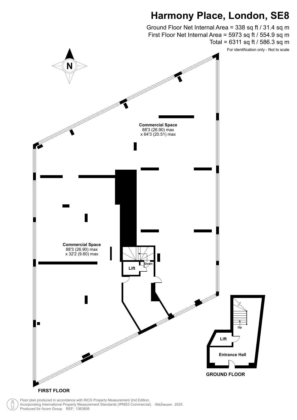
Unit 8 Vertex Tower, Deptford, London SE8 Ref: 36896

An opportunity to secure this substantial c.6,311sqft (c.586.3sqm) office housed within a modern development in Creekside, Deptford. The unit itself is accessible via a street entrance door, with a lift and grand stair hallway leading up to the second floor, where you are then met by two internal doors, both leading you to either side of this wrap around open plan office unit with panoramic views via the floor-to-ceiling glass windows.

The unit is currently in shell/core condition which is reflected within the lower sales value (c.£11.88/sqft). The property would certainly suit a business that has a large team or a client facing business, as the layout can be used as an open plan-office or broken up into smaller offices, boardrooms, staff rooms etc. There could also be a residential angle by converting the floor into residential apartments (subject to successful planning consent). Additionally, there are 4x parking spaces on site, and the unit is easily accessible by public transport locally.

Top